Ház
Origó
HázOrigoval pont a központban

Pest megye, Pécel


 

Ingatlan adatai

Irányár: 349 000 000 Ft
Típus: ház
Kategória: eladó
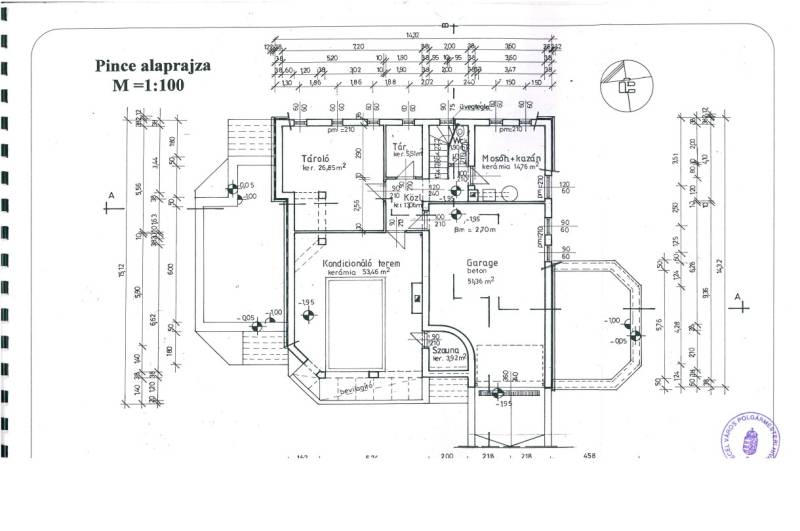
Alapterület: 441 m2
Fűtés: gáz (cirko)
Állapota: -
Szobák száma: 6
Építés éve: 2001
Szintek száma: -

Részletes leírás

ElhelyezkedésPest vármegye szívében, Pécelen kínálunk eladásra egy 441 m²-es, kiváló állapotú családi házat.A környék csendes, rendezett és kedvelt, ideális választás mindazoknak, akik nyugodt, mégis Budapesthez közeli otthont keresnek. Az ingatlan jellemzőiTelek területe: 1.287 m², mely saroktelek 2 oldalról bejárhatóLakóterület: 441 m²Szobák száma: 6Fürdőszobák száma: 3Fűtés: hőtárolós gázkazán + kandallóKlíma: beépített légkondicionáló3 x 32 A ipari áram is megtalálhatóParkolás: több autó számára, fedett garázsA telek kovácsoltvas kerítéssel körbekerítve, illetve a gépkocsi beállási lehetőség egy motoros úszókapuval kényelmesen megoldott. A ház bemutatásaAz ingatlan tágas, amerikai konyhás nappalival rendelkezik, amely modern és exkluzív hangulatot kölcsönöz a térnek.A világos, igényes belső terek a prémium minőségű kivitelezésnek köszönhetően otthonos, mégis elegáns életteret biztosítanak.Mindkét szinten terasz ad a reggeli kávézásnak élményt.Kényelmes megoldást nyújt a család minden tagjának, a nappaliban található impozáns kandalló pedig meghitt hangulatot teremt a téli estéken.Nyáron a házat körülölelő zöld kert természetes árnyékot és friss levegőt biztosít, a beépített klíma pedig gondoskodik a kellemes hőmérsékletről a legmelegebb napokon is. Külső és kertA kertkapcsolatos elrendezés és a rendezett, parkosított kert igazi oázist kínál a mindennapokban.A kertben fúrt kút is található.Búbos sütő kemence biztosítja a kinti sütögetés élményét.A telken belül 26 nm-es műhely található, amelyek szerszámok, anyagok tárolására is tökéletesek.A tágas garázs több személygépkocsi számára biztosít kényelmes parkolási lehetőséget.Illetve a fedett beálló még több kocsi számára. Hasznosíthatóság és lehetőségekEz az ingatlan nemcsak családi otthonnak, hanem akár vállalkozás céljára is kiváló lehetőség.Illetve 2 generáció számára is ideális választás lehet.Az 1.287 m²-es telek bővítési lehetőséget kínál, így a leendő tulajdonos saját igényeire szabhatja.Közlekedés és környékA környék kiváló ellátottsággal rendelkezik: iskolák, boltok, szolgáltatások mind elérhető távolságban találhatók.A jó közlekedési kapcsolatoknak köszönhetően Budapest gyorsan és egyszerűen megközelíthető – ideális választás ingázók számára is.A csendes utcák és a barátságos szomszédság biztonságos, családbarát környezetet teremtenek. Egyéb információkAz ingatlan tehermentesKiváló befektetési lehetőség ÉrdeklődésAmennyiben ez a különleges péceli ingatlan felkeltette érdeklődését,keressen bizalommal – nézze meg, és győződjön meg személyesen a ház egyedülálló értékeiről!

További adatok

Telekterület: 1 287 m2
Kert mérete: 1 287 m2
Erkély mérete: 42 m2
Felszereltség: -
Parkolás: -
Kilátás: -
Egyéb extrák:  
-

Hirdető adatai

Hirdető neve: Otthon Centrum
Kapcsolattartó: Lengyel Andrea
Hirdető telefonszáma: +36 70 461 9131
Honlap: -