Ház
Origó
HázOrigoval pont a központban

Pest megye, Kiskunlacháza


KISKUNLACHÁZA DUNAPART 

Ingatlan adatai

Irányár: 59 900 000 Ft
Típus: ház
Kategória: eladó
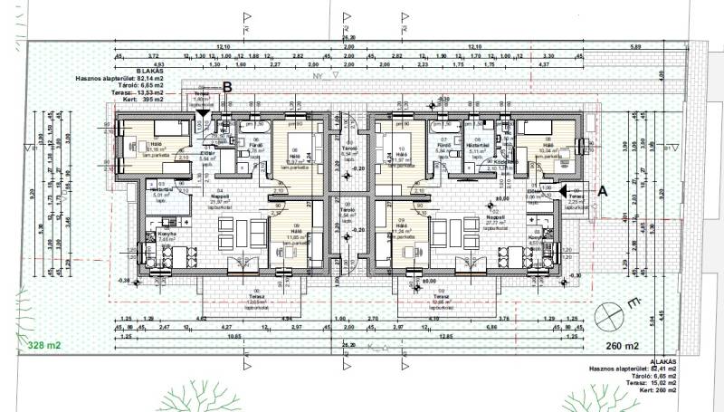
Alapterület: 82 m2
Fűtés: -
Állapota: új
Szobák száma: 4
Építés éve: -
Szintek száma: -

Részletes leírás

Csak a Dream Credit kínálatában!NYUGALOM ÉS FELTÖLTŐDÉS AZ OTTHONÁBAN!Kiskunlacháza DUNAPART, TÁROLÓ KAPCSOLATOS IKERHÁZ EGYEDI, KIHAGYHATATLAN AJÁNLAT!!Új építésű, OTTHON START 3%, CSOK+, Zöld-hitelre alkalmas ikerház!!Gyönyörű zöld környezetben, 2 percre a kisDunától!!!A lakás NETTÓ: 82,41 m2 Tároló: 6,65 m2 Terasz: 15,02 m2 Kert: 260 m2 -Amerikai-konyha-nappali-3db hálószoba-kamra-fürdő-wcB lakás NETTÓ: 82,14 m2 Tároló: 6,65 m2 Terasz: 13,53 m2 Kert: 395 m2 -Amerikai-konyha-nappali-3db hálószoba-kamra-fürdő-wcMEGBÍZHATÓ, REFERENCIÁVAL RENDELKEZŐ KIVITELEZŐTŐL!!!A fűtéséről, NAPELEMMEL KOMBINÁLHATÓ, HŐSZIVATTYÚ gondoskodik, padlófűtéssel.2025-ös szabványnak megfelelő KIEMELKEDŐ műszaki tartalom.Alapozás C-12-16/KK beton sávalap, lábazat 2 sor zsalukő PC simítottTeherhordó falazat: PTH 30, válaszfal PHT 10Födém: faszerkezet 20 cm Therwoolin szigetelés, 12,5 mm gipszkartonHéjazat: Bramach Duna betoncserépKülső nyílászárók: FEHNSTER műanyag, Thermo nyílászárók 3 rétegűEreszcsatorna: körben antracitKülső homlokzat: 10 cm grafitos dryvit, Kingston,v secret vödrös nemes vakolat fehér színekbenKapcsolók- konnektorok: 50-50 házankéntFűtés: padlófűtés, hőszivattyú fűtés, Hajdu hőszivattyú, Hajdu villanybojlerBelső nyílászárók: utólag beszerelhető antracit beltéri ajtóHidegburkolatok: Padlólap 10.000Ft/nm-ig.Meleg burkolatok: Laminált parketta 10.000 Ft/nm-igFürdőszobában csempe: 2 m magasan, wc-ben: 150 cm magasanKonyhában két bútor közt 60 cmA burkolóanyagot a vevő a saját költségén szállíttatja a helyszínre.Csaptelepek:20.000 Ft/dbSzaniteráruk: ALFÖLDI porcelán mosdó 50.000 Ft, WC 40.000 Ft (mű .a. tartállyal), 170-es akril kád 120.000 FtFestés: 2X glettelés, DISZPERZITEZÉS festés fehér színbenMűszaki járda: 20-40 cm beton a ház körül + a kerítéstől a bejáratig 100 cmKerítés: Elválasztó kerítés. Fő kerítés díszkőből, vasszerkezettel, deszkázattal.Általános tereprendezés, földfeltöltés nélkülKözművek: Villany 220 V, Vezetékes víz, csatornaH-tarifás óraRiasztó kiállásElektromos kapu kiállásCégünk INGYENES, iroda és bank-független Hitel ügyintézéssel is rendelkezésére áll, nem csak nálunk vásárolt ingatlanokra!!Kérdés és-vagy időpont egyeztetés miatt hívjon bátran akár hétvégén is.Amennyiben nem tudom felvenni visszahívom.

További adatok

Telekterület: 260 m2
Kert mérete: 260 m2
Erkély mérete: 15 m2
Felszereltség: -
Parkolás: -
Kilátás: -
Egyéb extrák:  
-

Hirdető adatai

Hirdető neve: Dream Credit Kft.
Kapcsolattartó: Zsuzsanna Hegedűs
Hirdető telefonszáma: +36707798880
Honlap: -