Ház
Origó
HázOrigoval pont a központban

Pest megye, Vácszentlászló


 

Ingatlan adatai

Irányár: 63 000 000 Ft
Típus: ház
Kategória: eladó
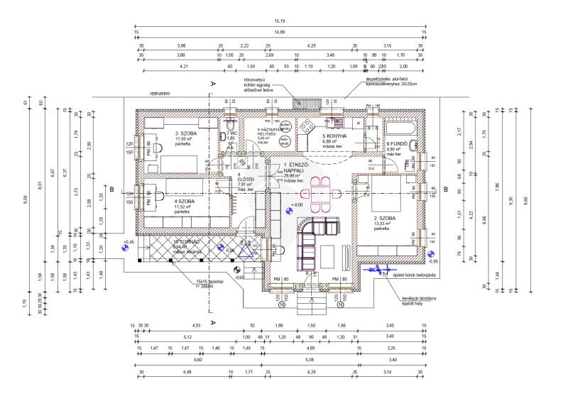
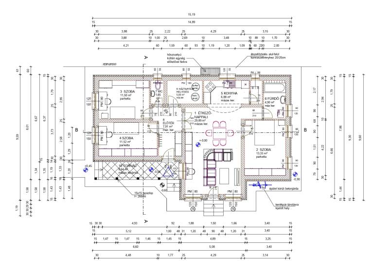
Alapterület: 92 m2
Fűtés: -
Állapota: új
Szobák száma: 3
Építés éve: 2025
Szintek száma: -

Részletes leírás

ELKEZDŐDÖTT AZ ÉPÍTKEZÉS!Eladásra kínálunk Vácszentlászlón egy 1033 m2-es telken elhelyezkedő egyszintes, egylakásos, 92 m2 lakóterületű ingatlant.Vácszentlászló csendes utcájában, nagyon jó helyen az Erdő utcában épül ez az újépítésű kiváló otthon. 92 m2-es lakóterületen konyha, nappali étkezővel + 3 szoba, háztartási helyiség, fürdőszoba, wc található.Az ingatlan részei:- 92,19 m2 lakótér- 8,64 m2 fedett tornácIgény esetén nappalihoz csatlakozó terasz kiépítéseAz ingatlan POROTHERM 30 HS tégla falazóelemből épül, közbenső teherhordő falak POROTHERM 25 téglából, válaszfalak 10 cm téglából, fa födémmel.Kívül fehér színű nemesvakolatot kap a ház.A tető antracit színű LINDAB acél cserepeslemez héjazatot kap.A homlokzat 15 cm EPS, a padló 10 cm Austrotherm AT-N100-as, míg a vízszintes födém 25 cm ásványgyapot hőszigetelést kap.A fehér színű műanyag nyílászárók hat légkamrás, háromrétegű üvegezéssel készülnek.A fűtésről monoblokkos hőszivattyús rendszer gondoskodik, padlófűtéssel.A műszaki tartalom az alábbi kereteken belül szabadon választható:Hidegburkolat: 3.000 Ft/m²-igMelegburkolat: 3.000 Ft/m²-igCsaptelepek: 15.000 Ft/dbKád vagy zuhany: 40.000 Ft/dbBeltéri ajtók: 35.000 Ft/dbElektromos rendszer kiépítése:Szobák: 3 konnektor/helyiségNappali: 4 konnektor + internet- és kábeltévé előkészítésKonyha: 6 konnektorVilágítás: helyiségenként 1 kiállásKábeltévé: előkészítveA megadott költségkeret feletti műszaki tartalom is választható, a különbözet finanszírozásával.Előkészítésre kerül a riasztórendszer és a kapunyitó elektronika is.Igény esetén komplett tervdokumentációt és részletes műszaki leírást biztosítunk.Megbízható kivitelező referencia munkája megtekinthető.Várható átadás: 2026 második negyedévJogerős építési engedélyre sem kell várni, elkezdődött az építkezés!Hívjon még ma!Intor Ingatlan - Otthont biztonságban!Ingyenes hiteltanácsadás és CSOK Plusz, Otthon Start ügyintézés!Bankfüggetlen hitelcentrumunk az összes hazai bank és hitelintézet ajánlatát versenyezteti az Ön érdekében — díjmentesen!- Egyedi, bankfiókban nem elérhető kamat- és díjkedvezmények- Hitelképesség előminősítés- Idő-, energia- és pénzmegtakarítás- Teljes körű ügyintézés

További adatok

Telekterület: 1 033 m2
Kert mérete: 1 033 m2
Erkély mérete: -
Felszereltség: -
Parkolás: -
Kilátás: utcai
Egyéb extrák:  
-

Hirdető adatai

Hirdető neve: Intor Ingatlan Powered By RH
Kapcsolattartó: Kertész Rebeka
Hirdető telefonszáma: +36 70 467 6820
Honlap: -