Ház
Origó
HázOrigoval pont a központban

Pest megye, Tápióság


 

Ingatlan adatai

Irányár: 57 999 000 Ft
Típus: ház
Kategória: eladó
Alapterület: 93 m2
Fűtés: -
Állapota: új
Szobák száma: 4
Építés éve: 2025
Szintek száma: -

Részletes leírás

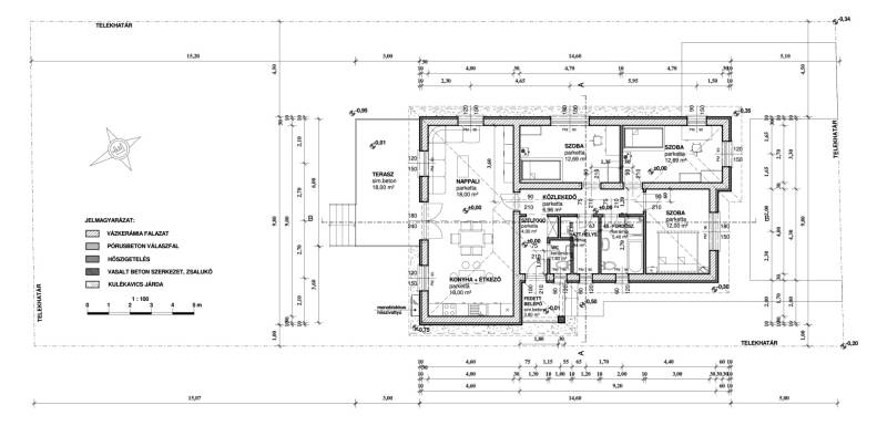
Tápióság központi részén, a Kölcsey utcában kínálunk megvételre három darab, új építésű, földszintes családi házat, amelyek egymás mellett, külön-külön 927 m²-es telkeken valósulnak meg. Mindhárom ingatlan teljesen önálló, 1/1 tulajdonú ház és saját telek formájában kerül kialakításra.Főbb adatok:- hasznos alapterület: ~93 m²- elrendezés: amerikai konyhás nappali + 2 hálószoba + fürdő + háztartási helyiség + terasz- falazat: 30 cm nútféderes tégla + 15 cm EPS homlokzati hőszigetelés- alap: vasalt beton- födém: fa gerendás, gombaölő szerrel kezelt- tető: fa tetőszerkezet, antracit betoncserép- nyílászárók: 3 rétegű üvegezésű műanyag ablakok, fehér műanyag párkánnyal- bejárati ajtó: műanyag thermo, biztonsági zárralGépészet:- fűtés és melegvíz: monoblokk levegő–víz hőszivattyú, padlófűtéssel- elektromos hálózat: riasztó és kapumozgató előkészítés- csatorna, vízóra, villanyóra: saját mérővel kiépítveBurkolatok és belső kialakítás:- hidegburkolat: 3.000 Ft/m²-ig- melegburkolat: 3.000 Ft/m²-ig- beltéri ajtók: 30.000 Ft/db-ig- szaniterek: mosdó 20.000 Ft/db-ig, WC 20.000 Ft/db-ig, kád/zuhany 40.000 Ft/db-ig- festés: fehér színben, két rétegbenExtrák:- mindhárom ház külön helyrajzi számon- tágas, 927 m²-es saját kert- terasz (burkolata egyedi egyeztetés szerint)- parkolási lehetőség a telken belülFinanszírozás:Az ingatlanok megfelelnek a CSOK Plusz és az Otthon Start és Falusi CSOK feltételeinek, így akár kedvezményes állami támogatással és kamattámogatott hitellel is megvásárolhatók.*projekt ingatlanok, szerződéskötés után kezdődik a megépítésük, 20% önrész szükséges

További adatok

Telekterület: 927 m2
Kert mérete: 927 m2
Erkély mérete: -
Felszereltség: -
Parkolás: -
Kilátás: panorámás
Egyéb extrák:  
-

Hirdető adatai

Hirdető neve: Intor Ingatlan Powered By RH
Kapcsolattartó: Kollár Ábel Gergő
Hirdető telefonszáma: +36 70 412 5808
Honlap: -