Ház
Origó
HázOrigoval pont a központban

Somogy megye, Fonyód


 

Ingatlan adatai

Irányár: 79 900 000 Ft
Típus: ház
Kategória: eladó
Alapterület: 149 m2
Fűtés: egyéb
Állapota: felújítást igényel
Szobák száma: 7
Építés éve: 1972
Szintek száma: -

Részletes leírás

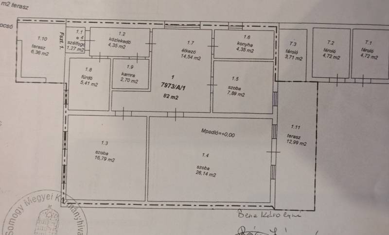
Fonyód szívéhez közel, egy csendes, kertvárosi környezetben kínálunk eladásra egy kétszintes 2 különbejáratú lakásos összesen 149 négyzetméteres, hat hálószobás szobás, társasházat, amely igazi lehetőségeket rejt magában. Az alsó szinti 82 négyzetméteres, három szobás, lakás és a felső szinti 67 négyzetméteres, három szobás, tetőtári lakás felújítandó. Az ingatlan ideális választás lehet középkorúak számára, akik saját ízlésük szerint szeretnék kialakítani álmaik otthonát, vagy nyaralóját. A lakásban található egy fürdőszoba, amely lehetőséget biztosít a modernizálásra, valamint a tágas szobákban a családi élet kényelmesen megvalósítható. A környék ellátottsága kiváló, a közeli üzletek, éttermek és szolgáltatások mindössze néhány percre találhatóak. Az ingatlan egy tehermentes, kertkapcsolatos lakás, amely lehetőséget biztosít a szabadban való pihenésre, kertészkedésre, vagy akár kisállattal való költözésre is. A kerti tároló praktikus megoldást nyújt a kerti eszközök tárolására, így Önnek csak a kreativitására lesz szüksége, hogy a kertjét a saját igényei szerint alakítsa ki. A lakás fűtése fa- és szénkályhával történik, ami egyedi hangulatot kölcsönöz a téli hónapokban. A felújítandó állapot lehetőséget ad arra, hogy az új tulajdonos a saját elképzelései szerint alakítsa át az ingatlant, így egyedi otthont teremthet magának és családjának. A közlekedési csomópont közelsége kitűnő közlekedést biztosít, így Fonyód és a környező települések könnyedén elérhetők. A csendes környék biztonságos és barátságos, ideális választás lehet családok számára, akik szeretnék élvezni a vidéki élet nyugalmát, ugyanakkor a városi kényelem közelségét is. Ez a felkapott környék nem csupán a lakás, hanem a környezet miatt is vonzó. A természet közelsége, a szép kilátások és a nyugodt életvitel mind hozzájárulnak ahhoz, hogy itt valóban otthonra, pihenésre találjon. Bármilyen kérdése merülne fel az ingatlannal vagy a környékkel kapcsolatban, kérem, ne habozzon megkeresni. Bizalommal állok rendelkezésére, hogy segítséget nyújtsak Önnek a legjobb döntés meghozatalában.

További adatok

Telekterület: 450 m2
Kert mérete: 450 m2
Erkély mérete: -
Felszereltség: -
Parkolás: -
Kilátás: -
Egyéb extrák:  
-

Hirdető adatai

Hirdető neve: Otthon Centrum
Kapcsolattartó: Dragon Edit
Hirdető telefonszáma: +36 70 461 9811
Honlap: -