Ház
Origó
HázOrigoval pont a központban

Somogy megye, Balatonföldvár


 

Ingatlan adatai

Irányár: 129 000 000 Ft
Típus: lakás (tégla)
Kategória: eladó
Alapterület: 98 m2
Fűtés: -
Állapota: -
Szobák száma: 3
Építés éve: 2022
Szintek száma: -

Részletes leírás

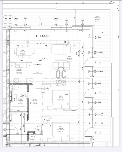
Balatonföldvár a déli part egyik legismertebb nyaralóhelye. Már a XIX. század végén is szívesen választották a hazai arisztokrácia tagjai nyári rezidenciájuk felépítésére a Széchenyi család birtokából felparcellázott telkeket. A település máig megőrizte a boldog békeidők bájos hangulatát, de számos fejlesztés valósul meg folyamatosan, az itt lakók és az ide látogató turisták kényelméért. Sok kilométernyi út, kerékpár út, járda, közterek, játszóterek újultak meg, és folyamatosan szépülnek a strandok is. Változatos kínálatú vendéglátóhelyekben kiváló ételeket lehet fogyasztani. A közelben számos szabadidős program érhető el. A teljesség igénye nélkül a legkedveltebb program helyszínek Kőröshegyi Levendulás, vagy Teknős park, Kerekiben található Balatoni Madárkert díszmadár és kisállat park sok élményt és feltöltődést tud nyújtani a pihenni vágyóknak.2021-ben átadott lakást kínálok figyelmébe Balatonföldvár központjában. Valóságban is a központban van sétatávolságra a Balatontól, strandtól, kikötőtől. A társasház és a lakás is luxus minőségben készült el. A társasház lifttel szerelt, a lakások egész évben használható lakóingatlanok, sok tulajdonos állandó lakos.A nyári hónapokban, szelesebb időben a társasház kültéri medencéje nyújthat kikapcsolódást. Rosszabb időjárás esetén, vagy csak kikapcsolódásként a lakók finn és infra szaunával, gőzkabinnal, és jakuzzival felszerelt wellness részleget tudnak használni.A lakás remek elosztású, 3. emeleti nappali, 2 háló szobás 98,4 m2-es lakótérrel + 36 m2-es terasszal rendelkezik. A komfortérzetet a lakásban „H” tarifás hőszivattyús mennyezet és padló fűtéssel, a nyári időszakban mennyezet hűtéssel lehet szabályozni. Tágas terek, nagy ablak felületek, motoros redőnyök. A hűtés-fűtés, motoros redőnyök smart-home rendszerben távolról vezényelhetőek.A vételár teljes bútorzattal együtt értendő, a lakáshoz tartozó tárolóval és felszíni nyitott parkolóval. Jelenleg egy Cég irodaként bérli, nem lakásként használja. A bérlőnek 1 hónapos felmondási ideje van. A bérlő az ingatlant szívesen tovább bérli az új tulajdonsotól.Finanszírozásban online ügyintézéssel rendelkezésére állunk!Bank független díjmentes ügyintézésünk során minden bank és hitelintézet kínálatát összehasonlítjuk, hogy önnek a legmegfelelőbb konstrukciót tudja kiválasztani, rövid utánjárással.Az ingatlan kitűnő választás bármilyen korosztály részére, egy-két gyermekes családoknak, unokás nagycsaládoknak, home office-ban dolgozóknak és kiadásra keresőknek is.

További adatok

Telekterület: -
Kert mérete: -
Erkély mérete: 40 m2
Felszereltség: -
Parkolás: -
Kilátás: utcai
Egyéb extrák:  
-

Hirdető adatai

Hirdető neve: Otthon Centrum
Kapcsolattartó: Dienes László
Hirdető telefonszáma: +36 70 388 5086
Honlap: -