Ház
Origó
HázOrigoval pont a központban

Hajdú-Bihar megye, Hajdúsámson


 

Ingatlan adatai

Irányár: 67 700 000 Ft
Típus: ház
Kategória: eladó
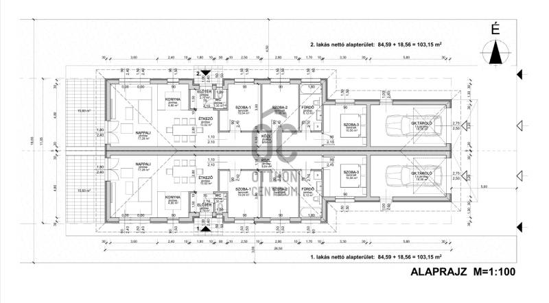
Alapterület: 103 m2
Fűtés: -
Állapota: új
Szobák száma: 4
Építés éve: 2026
Szintek száma: -

Részletes leírás

Álomotthon Hajdúsámsonban – ne maradjon le róla!Új építésű, modern ikerház eladó, amely minden igényt kielégít: tágas, világos, energiatakarékos és családbarát. Legyen Ön az első lakója!Lakótér és elrendezés:- 84,59 m² nettó hasznos lakóterület + 18,56 m²-es garázs- amerikai konyhás, hatalmas nappali, ahol a család és barátok együtt lehetnek- 3 különnyíló, kényelmes hálószoba- fürdőszoba + külön WC- tágas terasz (igény szerint fedett kialakítással)- igény esetén plusz fürdő, mosókonyha vagy kamraMűszaki tartalom:- ikerházfelek közt saját főfal + profi hang- és hőszigetelés- külön utcafronti bejárat minden lakóegységhez- masszív beton alap és ácsolt tetőszerkezet betoncseréppel- 30-as N+F tégla falazat, 15 cm homlokzati hőszigeteléssel- 25 cm födémszigetelés és 10 cm aljzatszigetelés- 3 rétegű üvegezésű, hőhídmentes nyílászárók- padlófűtés hőszivattyúval a teljes lakásban – alacsony rezsi, magas komfort- választható belső nyílászárók, burkolatok, szaniterek és csaptelepek – alakítsa saját ízlésére!- szabadon variálható belső elrendezésTelek és környezet:- saját, 406 m²-es telek- új építésű ingatlanok környezetében, barátságos lakóövezet- a főút mindössze 550 m-re – csend és nyugalom, de könnyű közlekedés- bevásárlás és szolgáltatások 7 percnyire (LIDL, Rossmann, Tedi, KIK, EcoFamily, konditerem stb.)- kisbolt pár perces sétára a mindennapi kényelmet szolgálvaMiért érdemes most lépni?Ez a ház ideális választás pároknak, családoknak és mindazoknak, akik modern, energiatakarékos és kényelmes otthonra vágynak Hajdúsámsonban. Az ár-érték arány kivételes, a környék fejlődő és barátságos.Ne hagyja ki, mert hamar elkel!Érdeklődjön még ma, hogy Ön választhassa ki elsőként álmai otthonát!

További adatok

Telekterület: 406 m2
Kert mérete: 406 m2
Erkély mérete: -
Felszereltség: -
Parkolás: -
Kilátás: -
Egyéb extrák:  
-

Hirdető adatai

Hirdető neve: Otthon Centrum
Kapcsolattartó: Apró Ferenc
Hirdető telefonszáma: +36 70 469 3916
Honlap: -