Ház
Origó
HázOrigoval pont a központban

Budapest, VII.kerület


 

Ingatlan adatai

Irányár: 59 600 000 Ft
Típus: lakás (tégla)
Kategória: eladó
Alapterület: 31 m2
Fűtés: gáz (konvektor)
Állapota: -
Szobák száma: 1
Építés éve: 1914
Szintek száma: -

Részletes leírás

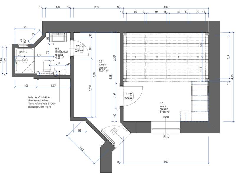
Felújított Stúdiólakás 7. kerület szívében a New York Kávéház közelében, gyönyörű Art Deco épületben eladó!Ingatlanról : Pozitív közgyűlési határozat van a lakás rövidtávú bérbeadásának hasznosítására! (AirBnB)- 2024-ban teljeskörűen felújított (víz, villany, nyílászárók, burkolatok) és folyamatosan karbantartott- Kitűnő állapotú- Világos lakás- Tájolás : K- 3. emeleti- 31 m2 + 9,6 m2 galéria- Belmagasság 3,5 m- Belső udvarra néző műanyag ablakok redőnnyel, szúnyoghálóval- Biztonsági bejárati ajtó- Inverteres hűtő-fűtő klíma (3,5KW)- Konvektoros fűtés- Bojler (álmennyezet felett - Ariston)- 1 x 32A- Minden közmű egyedi mérővel- Közös költség 6.870.-, ami tartalmazza a felújítási alapot- Homlokzat, lépcsőház állapota jó- Udvar rendezett- Lakások száma 62Az ingatlan belvárosi elhelyezkedése miatt kiváló lehetőség befektetők számára. A terület ellátottsága kitűnő, a közlekedés pedig kiváló. A környék folyamatosan fejlődik, ami a jövőbeni ingatlanértékek növekedését is jelzi, így ez a lakás nemcsak egy otthon, hanem egy okos befektetés is lehet.

További adatok

Telekterület: -
Kert mérete: -
Erkély mérete: -
Felszereltség: -
Parkolás: -
Kilátás: udvari
Egyéb extrák:  
-

Hirdető adatai

Hirdető neve: Otthon Centrum
Kapcsolattartó: Dávid Balázs
Hirdető telefonszáma: +36 70 461 9871
Honlap: -