Ház
Origó
HázOrigoval pont a központban

Győr-Moson-Sopron megye, Győr


 

Ingatlan adatai

Irányár: 220 000 000 Ft
Típus: ház
Kategória: eladó
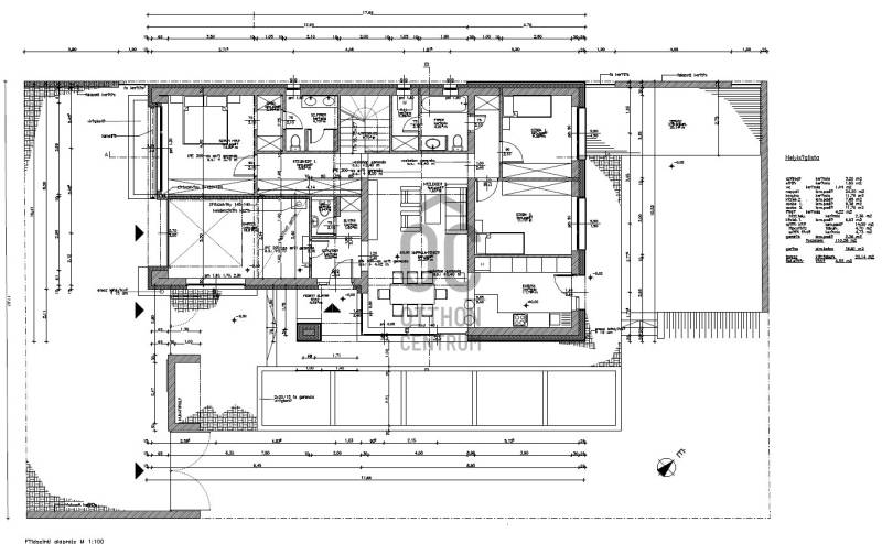
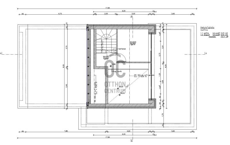
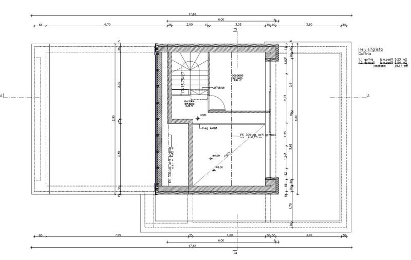
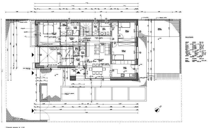
Alapterület: 146 m2
Fűtés: gáz (cirko)
Állapota: -
Szobák száma: 4
Építés éve: 2017
Szintek száma: -

Részletes leírás

Stílusos, elegáns otthon Győrszabadhegy nívós utcájában!Tágas világos terek, minőségi burkolatok, elegáns belső kialakítás jellemzi leginkább a következő ingatlant.2017-ben téglából épült ház összesen 146,27 nm-ből áll, amely 110 nm földszinti részből, 15 nm galériából, és közvetlen a házból nyíló 18 nm-es garázsból áll. A telek területe 530 nm.Nappali közvetlen kapcsolatban áll a terasszal és a gyönyörű kerttel, amely öntözőrendszerrel ellátott.Kertben MEDENCE található a maximális kényelemért!Nappali plusz 3 szoba, plusz egy galéria - ami jelenleg dolgozószobaként funkcionál - áll rendelkezésre.Szülői hálóból nyílik a gardrób, illetve egy külön fürdőszoba tusolóval és wc-vel.A gyerekszobák a ház másik részében vannak így a szülői részleg kellően privát!Külön kádas fürdő, mosóhelyiség is található a házban.Részben elektromos zsalúziákkal részben elektromos redőnyökkel felszerelt 3 rétegű alubevonatos nyílászárókkal.Fűtést és a melegvizet a garázsban elhelyezett kondenzációs gázkazán biztosítja, részben padlófűtéses, részben radiátoros hőleadással.A ház gyorsan birtokbavehető!Kérdésekkel kapcsolatban bizalommal kereshet!Hitelre van szüksége? Tudunk segíteni!Az Otthon Centrum, az ország egyik legnagyobb és legmegbízhatóbb hitelközvetítője, teljes körű és díjmentes hitelügyintézéssel, valamint biztosításkötéssel segíti ügyfeleit.Kérje kollégáinktól személyre szabott ajánlatát, és találja meg a legjobb megoldást gyorsan és egyszerűen!

További adatok

Telekterület: 530 m2
Kert mérete: 530 m2
Erkély mérete: 20 m2
Felszereltség: -
Parkolás: -
Kilátás: -
Egyéb extrák:  
-

Hirdető adatai

Hirdető neve: Otthon Centrum
Kapcsolattartó: Pingiczer Anett
Hirdető telefonszáma: +36 70 716 8106
Honlap: -