Ház
Origó
HázOrigoval pont a központban

Budapest, VIII.kerület


 

Ingatlan adatai

Irányár: 66 900 000 Ft
Típus: lakás (tégla)
Kategória: eladó
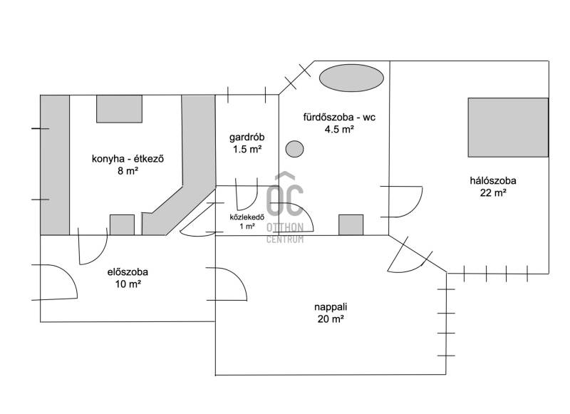
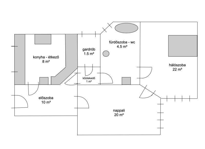
Alapterület: 59 m2
Fűtés: házközponti fűtés
Állapota: -
Szobák száma: 2
Építés éve: 1990
Szintek száma: -

Részletes leírás

Shakespeare azt mondta: \"Színház az egész világ!\" No, de maradjunk csak az Erkel Színház közelében lévő utcában, ahol eladó ez a használt, 59 nm-es lakás, mely ideális választás mindazok számára, akik 1,2 M Ft/nm áron keresnek jó állapotú, azonnal költözhető ingatlant.A földszinti lakás klasszikus elrendezésű és tágasak a terei - van külön konyha + étkező és két 20 - 22 nm-es szoba, melyekben sok minden elfér. Két külön nyilo szoba alkalmassá teszi a kiadásra, akár két külön személyre is és 3%-os hitelel elvihető.A lokáció közlekedés szempontjából nagyon jó, hiszen sétatávolságra a Blaha Lujza tér, mely fontos közlekedési csomópont. Innen a város bármely része gyorsan elérhető. További kérdésével, illetve megtekintési szándékával keressen bizalommal a megadott telefonszámon!Hiteligény esetén is tudunk segíteni, bankfüggetlen hiteltanácsadónk készséggel és díjmentesen állnak a rendelkezésére.

További adatok

Telekterület: -
Kert mérete: -
Erkély mérete: -
Felszereltség: -
Parkolás: -
Kilátás: udvari
Egyéb extrák:  
-

Hirdető adatai

Hirdető neve: Otthon Centrum
Kapcsolattartó: Pataki Ferenc
Hirdető telefonszáma: +36 70 469 3211
Honlap: -