Ház
Origó
HázOrigoval pont a központban

Csongrád megye, Szeged


Újvilág utcánál 

Ingatlan adatai

Irányár: 85 000 000 Ft
Típus: ház
Kategória: eladó
Alapterület: 234 m2
Fűtés: egyéb
Állapota: -
Szobák száma: 5
Építés éve: 1979
Szintek száma: -

Részletes leírás

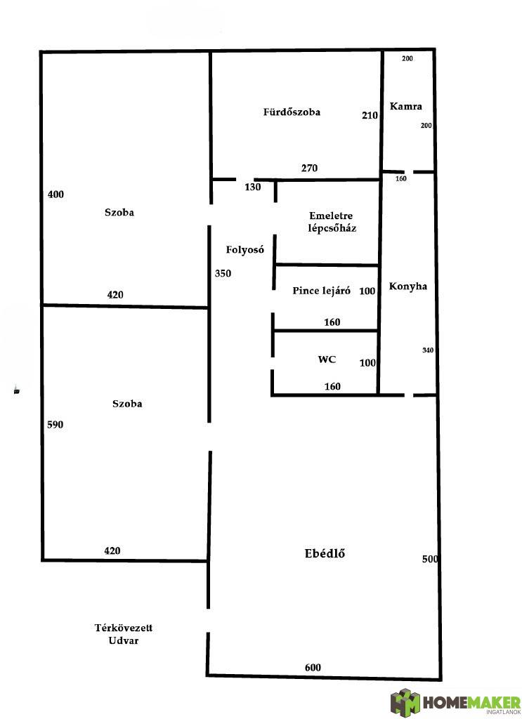
ÖSSZEKÖLTÖZNI? VÁLLALKOZNI? ITT MINDENT LEHET!!!!!Szőregen, Újvilág utcánál kínáljuk eladásra ezt az öt szobás, 150 nm-es dupla komfortos, kétgenerációs családi házat 2 garázzsal és vállalkozásra alkalmas épületegyüttessel.A felépítmények összterülete meghaladja a 300 négyzetmétert, lakóingatlanként van nyilvántartva.A „bombabiztos” kivitelezéssel dupla, – blokk + tégla – fallal megépített ház tökéletes statikai és műszaki állapotú.Betonozott, állómagasságú pince van a lakóház alatt, nagy teljesítményű központi gázkazánnal és az épületgépészeti vezetékekkel.A földszinten két tágas utcai szoba, impozáns méretű étkező, konyha, kamra, fürdőszoba és szeparált WC kapott helyet.A tetőtérben három szoba és kádas fürdőszoba lett kialakítva, udvarra néző erkély.A földszinten az évek során minden megújult:-nyílászárók cserélve-padlófűtés, szobákban új radiátorok-ízléses konyhabútor, beépített háztartási gépekkel-új burkolatok-modern, zuhanykabinos fürdőszoba + külön WCAkadnak a házban a felső szinten felújításra szoruló részek, de minden működik és egy tisztasági festés után azonnal beköltözhető.A sok, különböző tevékenységre alkalmas helyiségből álló udvari épület központi része a 70 nm-es, padlófűtéses üzlethelyiség a kiszolgáló raktárral, hűtőkamrával, öltözővel, szociális helyiséggel.Kis ráfordítással lakássá alakítható.A földszintes épületek padlástere is hasznosítható.Két utcai bejáratú garázzsal egészül ki ez a rengeteg lehetőséget biztosító nem mindennapi ingatlan.Tekintse meg irodánk teljes kínálatát a www.homemaker.hu oldalon!

További adatok

Telekterület: 620 m2
Kert mérete: 620 m2
Erkély mérete: 7 m2
Felszereltség: -
Parkolás: -
Kilátás: -
Egyéb extrák:  
-

Hirdető adatai

Hirdető neve: HOMEMAKER Ingatlanok
Kapcsolattartó: dr. Botosné Vigh Ildikó
Hirdető telefonszáma: +36707710355
Honlap: -