Ház
Origó
HázOrigoval pont a központban

Budapest, XXIII.kerület


 

Ingatlan adatai

Irányár: 759 900 000 Ft
Típus: kereskedelmi/ipari ingatlan
Kategória: eladó
Alapterület: 1 800 m2
Fűtés: -
Állapota: -
Szobák száma: -
Építés éve: -
Szintek száma: -

Részletes leírás

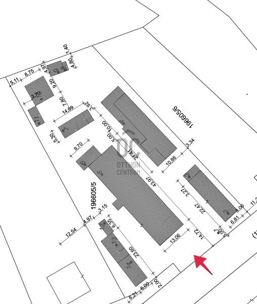
Megvételre kínálunk Budapest XXIII. kerületében egy ipari ingatlant!Gksz2-es besorolás, 14 m épületmagasság 40% beépítettséget engedélyez.Az ingatlan egy 4936 m2-es telken helyezkedik el.Jelenleg egy fő épület amely 650 m2. és 2021-ben lett teljesen felújítva.A főtésről padlófűtés gondoskodik. Teljes, hőszivattyús hűtés-fűtés és a melegvizet is biztosítja a 2 db 40KW-os napelem rendszer ami szaldó elszámolásban van.15 cm grafitos dryvit szigetelés a főépületen. 2 db szekcionált, motorizált ipari kapu.Melléképületek feltüntetve a vázrajzon, raktárfunkcióra alkalmasak, ezek nem szigeteltek, fém szerkezetűek. Összeségében kb. 1000 m2A meglévő épületek esetleges elbontása után egy 1350 m2 alapterületű csarnok építhető 14 méter eresz magassággal.A telephely két független elektromos bekötéssel rendelkezik egyenként 3x 63Amper.A terület a belváros és a 0-ás jól is jól megközelíthető. A Helsinki út utolsó olyan szakasza ahova a 0-ás felől súlykorlátozás nélkül kamion behajthat.A telephelyen belül akár 50 autó is tud parkolni így logisztikai cégnek is megfelelő lehet.

További adatok

Telekterület: -
Kert mérete: -
Erkély mérete: -
Felszereltség: -
Parkolás: -
Kilátás: -
Egyéb extrák:  
-

Hirdető adatai

Hirdető neve: Otthon Centrum
Kapcsolattartó: Csuha Attila
Hirdető telefonszáma: +36 70 465 7026
Honlap: -