Ház
Origó
HázOrigoval pont a központban

Pest megye, Szentendre


 

Ingatlan adatai

Irányár: 230 000 000 Ft
Típus: ház
Kategória: eladó
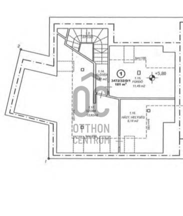
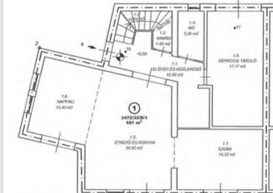
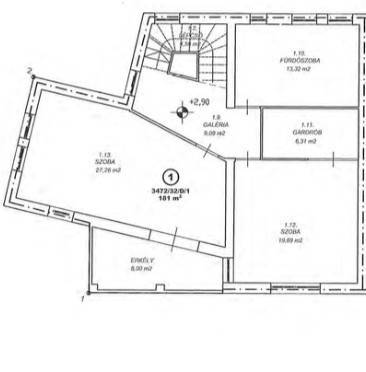
Alapterület: 220 m2
Fűtés: gáz (cirko)
Állapota: -
Szobák száma: 5
Építés éve: 2010
Szintek száma: -

Részletes leírás

Szentendrén, kiválóan megközelíthető, gondozott, lakóparki környezetben található ez a tágas, világos, meleg, családias hangulatú otthon.Az ingatlan lakóparkon belüli elhelyezkedése is kedvező, mivel szélső ház, viszonylag nagy telek tartozik hozzá, illetve van garázs is.Az emeleti hálószobák mérete megengedné, hogy akár két szobát alakítsanak ki belőlük.Olyan, akár többgyermekes családoknak ajánlanám, akiknek fontos a biztonság, illetve a gyerekek önálló közlekedése az otthonuk és az iskola között.

További adatok

Telekterület: 344 m2
Kert mérete: 344 m2
Erkély mérete: 33 m2
Felszereltség: -
Parkolás: -
Kilátás: -
Egyéb extrák:  
-

Hirdető adatai

Hirdető neve: Otthon Centrum
Kapcsolattartó: Darabant Gabriella
Hirdető telefonszáma: +36 70 716 8541
Honlap: -