Ház
Origó
HázOrigoval pont a központban

Pest megye, Nagykovácsi


 

Ingatlan adatai

Irányár: 359 000 000 Ft
Típus: ház
Kategória: eladó
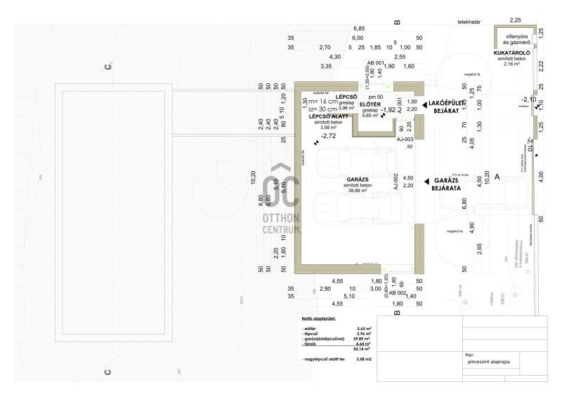
Alapterület: 237 m2
Fűtés: gáz (cirko)
Állapota: -
Szobák száma: 5
Építés éve: 2013
Szintek száma: -

Részletes leírás

​Lenyűgöző természetközeli luxus, ahol a design és a környezet tökéletes összhangot alkot!Nagykovácsi Cseresznyés részén áll ez a ház, melynek tervezésekor az volt a fő szempont, hogy a meglévő fák megmaradjanak – a végeredmény egy építészeti remekmű, ami körbeöleli az élő természetet. A fák árnyéka természetes hűtést és páratlan atmoszférát biztosít. A lehető legtöbb helyen hatalmas üvegfelületek engedik be a fényt és szinte elmossák a bel- és kültér közötti határokat. A ház egyik különleges építészeti megoldása a télikert, amely olyan érzetet nyújt, mintha közvetlenül a kertben sétálnánk.Mindezt a hatást fokozza a ház teraszairól elénk táruló csodás panoráma.Főbb paraméterek:- 237 m2 nettó alapterület- 2 lakószint + szuterénszinten a garázs- nappali + 4 szobaA szobák elosztása lehetővé teszi különböző generációk elkülönülését- 3 fürdőszoba + 2 kézmosós wc- fűtés: kondenzációs kazán, (szobákban radiátor, nappali-étkezőben padlófűtés), 3 db hűtő-fűtő split klíma, nappaliban cserépkályha- parkolás: 2 állásos garázs + nyitott beálló- 24 m2 fedett terasz- 11 m2 nyitott terasz- 17,8 m2 erkélyMűszaki paraméterek:- Porotherm 30 külső falazat+ 15 cm hőszigetelés- tető: VM-Zinc horganylemez- 3 rétegű fa nyílászárók - tölgy svédpadló padló- és lépcsőburkolatok- furnérozott tölgy belső ajtók- teraszok burkolata: kerámia, vörösfenyő, travertin mészkő- tetőn 5,3 kW-os napelemrendszer- automata öntözőrendszer- kerti csobogó- kerti tárolóAjánljuk 4-5 fős családoknak vagy nagyszülőkkel összeköltözőknek.Ha szeretné megtekinteni, várom hívását!

További adatok

Telekterület: 737 m2
Kert mérete: 737 m2
Erkély mérete: 55 m2
Felszereltség: -
Parkolás: -
Kilátás: -
Egyéb extrák:  
-

Hirdető adatai

Hirdető neve: Otthon Centrum
Kapcsolattartó: dr. Mogony Márta
Hirdető telefonszáma: +36 70 716 9526
Honlap: -