Ház
Origó
HázOrigoval pont a központban

Budapest, VII.kerület


 

Ingatlan adatai

Irányár: 69 000 000 Ft
Típus: iroda
Kategória: eladó
Alapterület: 46 m2
Fűtés: -
Állapota: -
Szobák száma: -
Építés éve: 1910
Szintek száma: -

Részletes leírás

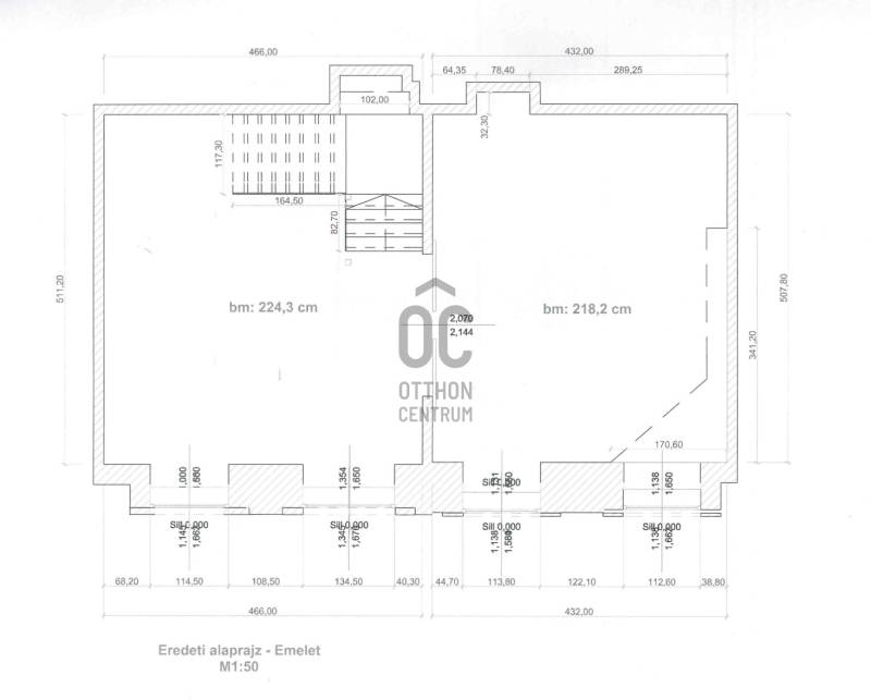
Eladásra kínálok egy több funkcióra is hasznosítható ingatlant. Legutóbb irodaként üzemelt, de lakás célra is megfelelő lehet. Műhely besorolású, 3%-os hitellel nem kompatibilis.Ingatlanról:- 46 nm alapterületű, eredetileg 5m-es belmagasság- jelenleg belső kétszintes, 2x46 nm- 2,10 és 2,25 m belmagasság-teljeskörűen felújított-cirkó fűtés-műanyag, törés- és belátásgátló ablakokkal-jelenleg 2 wc-s mellékhelyiség van kialakítva, de a vevő igényei szerint 1 fürdőszoba kialakítása lehetséges az egyik wc helyén, illetve a tároló helyiség átalakításával-utcai bejáratos-közvetlen szomszéd nincs.A társasház rendezett, homlokzata felújított.Közlekedés:- Trolik max. 3 perc sétára: 70, 74, 78, 79- Keleti pályaudvar 9 perc sétáraJöjjön el megnézni és tegyen bátran ajánlatot! Várom hívását!

További adatok

Telekterület: -
Kert mérete: -
Erkély mérete: -
Felszereltség: -
Parkolás: -
Kilátás: -
Egyéb extrák:  
-

Hirdető adatai

Hirdető neve: Otthon Centrum
Kapcsolattartó: Dorkó Ivett
Hirdető telefonszáma: +36 70 716 9951
Honlap: -