Ház
Origó
HázOrigoval pont a központban

Zala megye, Galambok


 

Ingatlan adatai

Irányár: 59 990 000 Ft
Típus: ház
Kategória: eladó
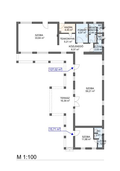
Alapterület: 143 m2
Fűtés: egyéb
Állapota: -
Szobák száma: 3
Építés éve: 2000
Szintek száma: -

Részletes leírás

Kiemelet megbízás irodánk kínálatában!Zalakaros fürdővárostól, Nagykanizsától és az autópályától pár percre áll ez a remek ingatlan.Ha vállalkozásához ötletet keres, esetleg csak a gyújtó szikra hiányzik akkor az Ön számára ez az ideális választás.Korábban közösségi célokat szolgáló impozáns épület.Két óriási termével, melyből még plusz 3 szoba is kialakítható!Az épület utcafronti részén külön elválasztott iroda-üzlet helyiségével, vizesblokkjaival, konyhájával szinte kínálja a lehetőséget a fantázia szárnyalásához.Az óriási telken, három önálló építési telket lehet kialakítani, melynek vázrajza is elkészült már.Az épület melegéről kiváló fatüzelésű kazánnal üzemelő központi fűtés gondoskodik, gázcirkó kialakításának adott a lehetőség.Több mint 159 nm hasznos alapterület, hőszigetelt műanyag nyílászárók, kiváló új tetőszerkezet és héjazat.Az ingatlan nagyon sokféleképpen hasznosítható, akár többgenerációs családi háznak, üzletnek, vendéglátó egységnek, telephelynek, campingnek, befektetésnek is tökéletes! Gazdálkodásra, állattartásra is alkalmas nagy területtel rendelkezik!Ha a hirdetés felkeltette figyelmét, megtekintés céljából hívjon bizalommal!Az adatok kizárólag a megbízóink által rendelkezésünkre bocsátott információkon alapulnak.Fentiekre tekintettel, az adatok teljességéért, helyességéért és aktualitásáért nem vállalunk felelősséget.Az árváltozás, adatmódosítás és közbeni értékesítés jogát fenntartjuk, mindezekért jogi felelősséget nem áll módunkban vállalni.

További adatok

Telekterület: 4 413 m2
Kert mérete: 4 413 m2
Erkély mérete: 16 m2
Felszereltség: -
Parkolás: -
Kilátás: -
Egyéb extrák:  
-

Hirdető adatai

Hirdető neve: Otthon Centrum
Kapcsolattartó: Poldauf Róbert
Hirdető telefonszáma: +36 70 469 3266
Honlap: -