Ház
Origó
HázOrigoval pont a központban

Pest megye, Sülysáp


 

Ingatlan adatai

Irányár: 89 000 000 Ft
Típus: ház
Kategória: eladó
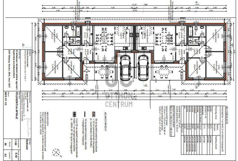
Alapterület: 100 m2
Fűtés: elektromos
Állapota: új
Szobák száma: 4
Építés éve: 2026
Szintek száma: -

Részletes leírás

Sülysáp Pest megyében található város, a Nagykátai járáshoz tartozik.Budapesttől 50km, autópályán kényelmesen megközelíthető. Vonattal a Kökitől kb.60 percnyi távolságra.Nagyobb városok a közelben Cegléd és Nagykáta.Az eladó ingatlan a 21.századi korszerű energia takarékos elvárásoknak maximálisan megfelel.A+ kategóriájú, padlóban és falban elvezetett fűtés/hűtés hőszivattyús technológia, klímával.3X16 A áram ellátás, víz, csatorna központi rendszer.Az ingatlan 100nm-es, konyha/étkező/nappali egy légtérben kap helyet de mégis kicsit elkülönül egymástól.A gépészet a háztartási helyiségben kap helyet. A fürdőszoba felszerelés saját elképzelés szerint válaszható, akár kád vagy zuhany is válaszható.3 külön nyíló hálószoba kerül kialakításra.Ízlésesen pergolás megoldással lesz az árnyékolás megoldva.18nm-es terasz, nappali kapcsolattal.Minden jellegű hitel, állami támogatás igényelhető.Várható átadás időpontja: 2026. május.

További adatok

Telekterület: 350 m2
Kert mérete: 350 m2
Erkély mérete: 18 m2
Felszereltség: -
Parkolás: -
Kilátás: -
Egyéb extrák:  
-

Hirdető adatai

Hirdető neve: Otthon Centrum
Kapcsolattartó: Fejes Hajnalka
Hirdető telefonszáma: +36 70 469 3706
Honlap: -