Ház
Origó
HázOrigoval pont a központban

Somogy megye, Siófok


 

Ingatlan adatai

Irányár: 149 000 000 Ft
Típus: ház
Kategória: eladó
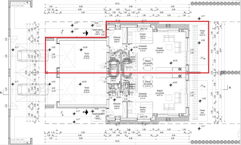
Alapterület: 147 m2
Fűtés: gáz (cirko)
Állapota: új
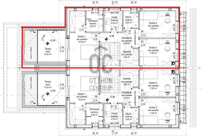
Szobák száma: 4
Építés éve: 2025
Szintek száma: -

Részletes leírás

CSALÁDOSOK, BALATONRA KÖLTÖZŐK FIGYELEM!!Szeretném felhívni a figyelmét erre a PRÉMIUM, ÚJÉPÍTÉSŰ, NETTÓ 147NM-ES IKERHÁZFÉLRE, AMIHEZ 432NM-ES TELEKRÉSZ TARTOZIK!Az ingatlan nem csak a helyszín szempontjából kiváló választás, hanem maga az otthon is modern, kényelmes ÉS RENDKÍVÜL FELSZERELT.A TÁGAS és az EXKLUZÍV KANDALLÓS nappali, plusz 3 SZOBA, illetve 3 FÜRDŐSZOBA minden család igényét kielégíti!Az ingatlant NAGY 16NM-ES TERASZA ÉS 20NM-ES ERKÉLLYEL TERVEZTÉK.FŰTÉSÉRŐL, KONDENZÁCIÓS GÁZ-CIRKÓS PADLÓFŰTÉS , illetve a fent említett a kivitelező álltál tervezett, EGYEDI KANDALLÓ gondoskodik, továbbá 4db, HŐSZIVATTYÚS, HŰTŐ-FŰTŐ KLÍMA, biztosítja a kellemes hőérzetet. (1 a nappaliban, 3 az emeleten szobánként)Falai 30-as POROTHERM TÉGLÁBÓL, illetve a két ingatlan közötti válaszfal, DUPLA SOROS SILKA falazattal készült a teljes hangszigetelés céljából!TOVÁBBI EXTRA, HOGY A JELENLEGI VÉTELÁR TARTALMAZZA AMÁR BEÉPÍTETT KANDALLÓT, AZ ELEKTROMOS REDŐNYÖKET, ILLETVE AUTOMATA GARÁZSKAPUT EGYARÁNT!HASZNÁLATBAVÉTELI ENGEDÉLLYEL RENDELKEZIK, AZONNAL KÖLTÖZHETŐ!Igény szerint 2 GENERÁCIÓS kivitelre is módosítható!A SIÓFOK mindig is vonzotta az embereket a családias környezete, infrastruktúrája és lokációja végett. Az ingatlan ideális választás lehet azok számára, akik a BALATON KÖZELÉBEN, de még is kertvárosias életmódot preferálják.Siófok Szabadstrandja 7 perc autóval, gyalog 21 percre található.Várható KULCSRAKÉSZ átadás, 1 HÓNAPON BELÜL!ILLETVE A MÁSIK FÉL IS MEGVÁSÁROLHATÓ: U0048737HITEL TANÁCSADÓINK KÉSZSÉGGEL ÁLLNAK RENDELKEZÉSÉRE, AKÁR VÁSÁRLÁS, AKÁR CSAK EGY ELŐZETES HITELSZŰRÉSRŐL LEGYEN SZÓ!Ha bármilyen kérdése lenne, vagy szeretné személyesen is megnézni az ingatlant, ne habozzon felvenni Velem a kapcsolatot a hét minden napján!

További adatok

Telekterület: 432 m2
Kert mérete: 432 m2
Erkély mérete: 24 m2
Felszereltség: -
Parkolás: -
Kilátás: -
Egyéb extrák:  
-

Hirdető adatai

Hirdető neve: Otthon Centrum
Kapcsolattartó: Pásztor Csaba
Hirdető telefonszáma: +36 70 388 5476
Honlap: -