Ház
Origó
HázOrigoval pont a központban

Budapest, VI.kerület


 

Ingatlan adatai

Irányár: 135 000 000 Ft
Típus: kereskedelmi/ipari ingatlan
Kategória: eladó
Alapterület: 213 m2
Fűtés: -
Állapota: -
Szobák száma: -
Építés éve: -
Szintek száma: -

Részletes leírás

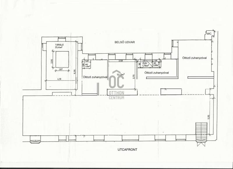
Eladó Terézváros szívében, egy 213 m²-es félszuterén üzlethelyiség, amelyet Heidlberr Vilmos által tervezett, szecessziós bérházban találunk.Az ingatlan 2017-ben teljes körű felújításon esett át: kicserélték a nyílászárókat, víz- és villanyvezetékeket, megújult a gázkazán, a csatornarendszer, valamint a burkolatok. Ezen felül automata, hőcserélős szellőztető rendszer került beépítésre. A nettó 110 m²-es, tágas egyterű edzőterem mellett öltözők, mosdók és mellékhelyiségek biztosítják a kényelmet.Az üzlet előtt parkolási lehetőség adott, valamint frissen felújított zöldfelület is található. Az utcáról közvetlenül, kényelmesen megközelíthető, és valójában két utcai bejárattal rendelkezik,jelenleg csak az egyik használatos, de a másik is könnyedén újra megnyitható.Közlekedése kiváló, a város minden pontjáról könnyen elérhető (Kodály Körönd, Andrássy út, Hunyadi tér).

További adatok

Telekterület: -
Kert mérete: -
Erkély mérete: -
Felszereltség: -
Parkolás: -
Kilátás: -
Egyéb extrák:  
-

Hirdető adatai

Hirdető neve: Otthon Centrum
Kapcsolattartó: Schweder Bence
Hirdető telefonszáma: +36 70 461 9961
Honlap: -