Ház
Origó
HázOrigoval pont a központban

Budapest, XII.kerület


 

Ingatlan adatai

Irányár: 95 000 000 Ft
Típus: lakás (tégla)
Kategória: eladó
Alapterület: 33 m2
Fűtés: -
Állapota: -
Szobák száma: 2
Építés éve: -
Szintek száma: -

Részletes leírás

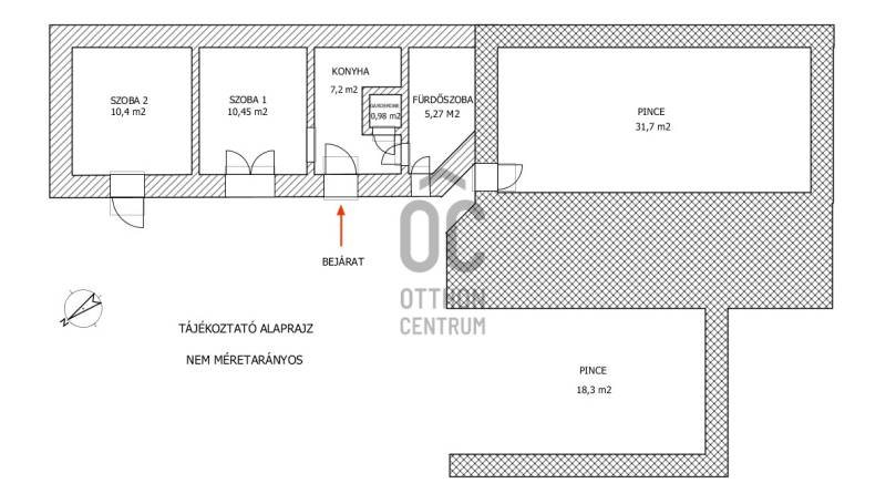
Eladó egy présház jellegű sváb falusi porta és pince együttes a XII. kerületben.A Svábhegy szőlészeti és borászati hagyományainak egyik utolsó hírnökeként műemléki védelmet élvez.A présházat lakóházzá alakították, de az eredeti építészeti forma és stílus jegyeket megőrizték.Megmaradt a látványos pince és az egykori helyi szőlő művelési kultúrára jellemző támfalas-teraszos kert.Az 1830-as években épült házban két társasházi lakás található külön lekerített kertrésszel. A hangulatos, ősfás, teraszos kert kb. 900 m2.Az eladásra kerülő ingatlan:- 33 m2-es 2 szobás lakás. (Az egyik szoba jelenleg az udvarról nyílik és teljesen felújítandó.)- 2 db pince - összesen 50 m2 (Az egyik pince elölről nyitott és felújítást-helyreállítást igényel. Feltehetőleg ennek mérete a jelenleg láthatónál jóval nagyobb)- kő és tégla falazat (60 cm vastag) 5 cm hungarocell szigeteléssel.- elektromos fűtés- buszmegálló 300 méteren belül található. (21, 21A, 212, 221)- fogaskerekű megálló 400 méter- bevásárlási lehetőség 400 méterAlkalmas lehet idegenforgalmi - vendéglátási célra, borpincének, rendezvény helyszínnek.

További adatok

Telekterület: -
Kert mérete: -
Erkély mérete: -
Felszereltség: -
Parkolás: -
Kilátás: kertre néző
Egyéb extrák:  
-

Hirdető adatai

Hirdető neve: Otthon Centrum
Kapcsolattartó: Tóth Ágota
Hirdető telefonszáma: +36 70 716 9216
Honlap: -