Ház
Origó
HázOrigoval pont a központban

Budapest, XIV.kerület


 

Ingatlan adatai

Irányár: 336 000 Ft/hó
Típus: iroda
Kategória: kiadó
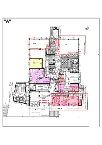
Alapterület: 96 m2
Fűtés: -
Állapota: -
Szobák száma: -
Építés éve: -
Szintek száma: -

Részletes leírás

Budapest XIV. kerületében, a Szugló utcában kiadó irodahelyiségek kedvező feltételekkel.A földszinten egy 96 m²-es, egy 92 m²-es, illetve egy 60m²-es iroda bérelhető.Az emeleten további 4 kisebb irodahelyiség áll rendelkezésre.Az irodák világosak, jól alakíthatók és könnyen megközelíthetők tömegközlekedéssel és autóval egyaránt.A kiadandó területek irányára a következőképpen alakul:- iroda bérleti díj 3650 Huf/nm- üzemeltetési díj 2500 Huf/nm, amely tartalmazza a fenntartási költségeket, valamint az adókat is.Bármilyen kérdés vagy megtekintési szándék esetén keressen bizalommal, akár hétvégén is!

További adatok

Telekterület: -
Kert mérete: -
Erkély mérete: -
Felszereltség: -
Parkolás: -
Kilátás: -
Egyéb extrák:  
-

Hirdető adatai

Hirdető neve: Otthon Centrum
Kapcsolattartó: Kiss Anna Fanni
Hirdető telefonszáma: +36 70 461 9741
Honlap: -