Ház
Origó
HázOrigoval pont a központban

Pest megye, Szigethalom


 

Ingatlan adatai

Irányár: 81 990 000 Ft
Típus: ház
Kategória: eladó
Alapterület: 110 m2
Fűtés: -
Állapota: -
Szobák száma: -
Építés éve: 2025
Szintek száma: -

Részletes leírás

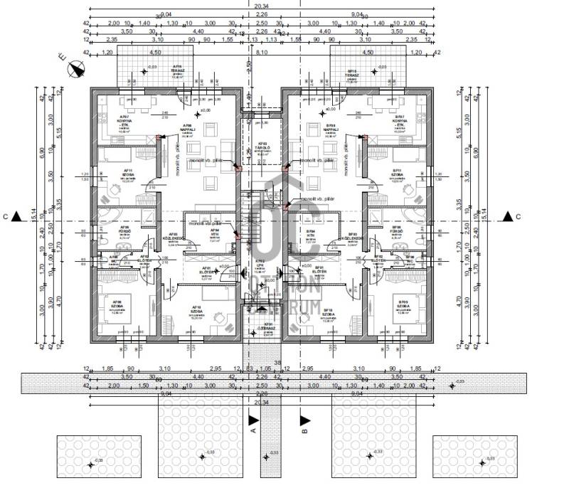
Új építésű, 110 m²-es földszinti lakás 200 m² saját kerttel és parkolóhellyel SzigethalmonEladásra kínálunk egy most épülő, 109,97 m²-es földszinti lakást, amelyhez 11 m²-es terasz, 200 m² saját kert és saját parkolóhely is tartozik. Az ingatlan modern kivitelezésben készül, várható átadása 2026. május.A tágas belső terek, a kertkapcsolat és a terasz révén az ingatlan ideális választás lehet családoknak, akik szeretnének új építésű, energiatakarékos otthonba költözni, ahol a privát kert nyújtja a kikapcsolódás lehetőségét.Főbb jellemzők:-Nettó alapterület: 109,97 m² + 11 m² terasz-200 m² saját kert kizárólagos használattal-Saját parkolóhely az ingatlanhoz-12 cm grafitos homlokzati szigetelés-6 kamrás, 3 rétegű, melegperemes nyílászárók-Elektromos redőnyök minden ablakon-Padlófűtés hőszivattyúval, Fan-coil vagy légkondicionáló (4 db/lakás)-Burkolat 10.000 Ft/m²-ig választható-12 cm lépésálló szigetelés a padlóban-Monolit födém, színezett ereszcsatornákElhelyezkedés:Az ingatlan Szigethalom kedvelt, központi részén található, mégis nyugodt helyen. A közelben HÉV, buszmegálló, boltok, iskola, óvoda is elérhető, így minden adott a kényelmes mindennapokhoz.Ez a modern otthon nemcsak a korszerű kivitelezés és energiatakarékos megoldások miatt vonzó, hanem a nagy saját kert és a parkolóhely miatt is, amelyek ritkaságnak számítanak új építésű ingatlanoknál.Ha szeretné elsőként lefoglalni ezt a földszinti lakást, keressen bizalommal további információért és egyeztetésért!

További adatok

Telekterület: -
Kert mérete: -
Erkély mérete: -
Felszereltség: -
Parkolás: -
Kilátás: -
Egyéb extrák:  
-

Hirdető adatai

Hirdető neve: Otthon Centrum
Kapcsolattartó: Faragó Tímea
Hirdető telefonszáma: +36 70 388 5256
Honlap: -