Ház
Origó
HázOrigoval pont a központban

Pest megye, Szigethalom


 

Ingatlan adatai

Irányár: 76 200 000 Ft
Típus: iroda
Kategória: eladó
Alapterület: 104 m2
Fűtés: -
Állapota: -
Szobák száma: -
Építés éve: 2025
Szintek száma: -

Részletes leírás

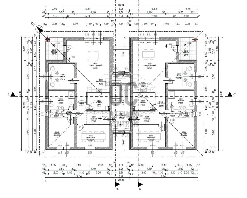
Új építésű, 103 m²-es iroda/lakás eladó 7 m² terasszal Szigethalom központi részénEladásra kínálunk egy most épülő, 103,67 m²-es, 1. emeleti irodát/lakást, amelyhez 7 m²-es terasz tartozik. Az ingatlan zárt lépcsőházból közelíthető meg, modern kivitelezésben készül, várható átadása 2026. május.Az ingatlan kiváló lehetőség vállalkozásoknak irodai használatra, de elrendezése és műszaki tartalma révén lakásként is kényelmesen használható.Főbb jellemzők:-Nettó alapterület: 103,67 m² + 7 m² terasz-emeleti elhelyezkedés, zárt lépcsőházban-12 cm grafitos homlokzati szigetelés-6 kamrás, 3 rétegű, melegperemes nyílászárók-Elektromos redőnyök minden ablakon-Padlófűtés hőszivattyúval, Fan-coil vagy légkondicionáló (4 db/lakás)-Burkolat 10.000 Ft/m²-ig választható-12 cm lépésálló szigetelés a padlóban-Monolit födém, színezett ereszcsatornákElhelyezkedés:Az ingatlan Szigethalom frekventált, központi, mégis nyugodt részén található. A HÉV, buszmegálló és a központ pár perc alatt elérhető, a közelben boltok, iskola, óvoda is megtalálhatók, így mind a mindennapi élethez, mind egy vállalkozás működéséhez ideális választás.Ez a modern épület nemcsak a korszerű kivitelezés és energiatakarékos megoldások miatt vonzó, hanem rugalmas felhasználhatósága miatt is: lehet iroda, rendelő, vagy akár családi otthon. Ha szeretné elsőként lefoglalni ezt az ingatlant, keressen bizalommal további információért és személyes egyeztetésért!

További adatok

Telekterület: -
Kert mérete: -
Erkély mérete: -
Felszereltség: -
Parkolás: -
Kilátás: -
Egyéb extrák:  
-

Hirdető adatai

Hirdető neve: Otthon Centrum
Kapcsolattartó: Faragó Tímea
Hirdető telefonszáma: +36 70 388 5256
Honlap: -