Ház
Origó
HázOrigoval pont a központban

Budapest, XIX.kerület


 

Ingatlan adatai

Irányár: 125 000 000 Ft
Típus: lakás (újépítésű)
Kategória: eladó
Alapterület: 100 m2
Fűtés: -
Állapota: új
Szobák száma: 4
Építés éve: 2026
Szintek száma: 1

Részletes leírás

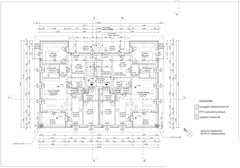
A XIX. kerület kedvelt, kertvárosi részén,csendes zsákutcában, a Viola utcában, 4 lakásos társasházban, kulcsrakészen kínálunk eladásra egy modern, társasházi alapító okirattal külön helyrajzi számon nyilvántartott 1. emeleti lakást.Főbb adatok:-Lakás alapterület: 89,69 m² + erkélyek 9,09 és 10,39 m²-Elosztás: előszoba, nappali + étkező + konyha, 3 hálószoba, fürdőszoba, kamra, háztartási helyiségMűszaki tartalom: Szerkezet és szigetelés-30 cm Porotherm P30 N+F tégla falazat-Földszinten E-gerendás betonfödém, az emeleten fa födém-Padlóban 10 cm lépésálló hőszigetelés, az emeleten 2 cm hanggátló lépésálló szigetelés-Homlokzaton 15 cm EPS hőszigetelés-Felső födémen 30 cm ásványgyapot hőszigetelés Energiatakarékos gépészet-Monoblokkos hőszivattyú, padlófűtéssel-Klíma-H tarifás villanyóra Kényelem és biztonság-Elektromos, szigetelt alumínium redőnyök-Riasztórendszer mozgásérzékelőkkel + IP kamerarendszer-Elektromos kapu és garázsajtó Választható belső kialakítás-10.000 Ft/m²-ig választható hideg- és melegburkolatok-90.000 Ft értékű beltéri ajtók-250.000.- Ft értékű kád vagy zuhanyzó-Geberit falsík mögötti WC rendszerElhelyezkedés:-Csendes, kertvárosi környezet-Rendezett utcafront, aszfaltozott út-Kiváló közlekedés -Bevásárlási lehetőségek, iskola, óvoda gyalogos közelségben Kérésre szívesen küldünk komplett tervdokumentációt, műszaki leírást.INGYENES hitel tanácsadás, CSOK Plusz ügyintézés!BANKFÜGGETLEN hitelcentrumunk az összes elérhető bank és hitelintézet ajánlatát versenyezteti az Ön kedvéért, ráadásul DÍJMENTESEN.- Egyedi, bankfiókban nem elérhető kamat- és díjkedvezmények- Hitelképesség vizsgálat- Idő, energia és pénz megtakarítás- Teljes hivatali ügyintézésAmennyiben hirdetésem felkeltette az érdeklődését vagy egyéb információra van szüksége hívjon bizalommal!

További adatok

Telekterület: -
Kert mérete: -
Erkély mérete: 20 m2
Felszereltség: -
Parkolás: -
Kilátás: udvari
Egyéb extrák:  
-

Hirdető adatai

Hirdető neve: GDN Ingatlanhálózat
Kapcsolattartó: Horváth Péter
Hirdető telefonszáma: +36-70-606-2990
Honlap: -