Ház
Origó
HázOrigoval pont a központban

Budapest, XIII.kerület


 

Ingatlan adatai

Irányár: 230 000 000 Ft
Típus: lakás (tégla)
Kategória: eladó
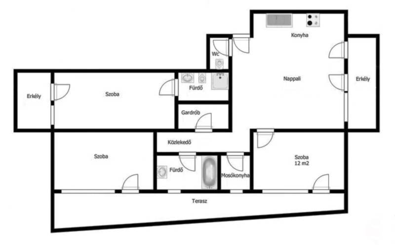
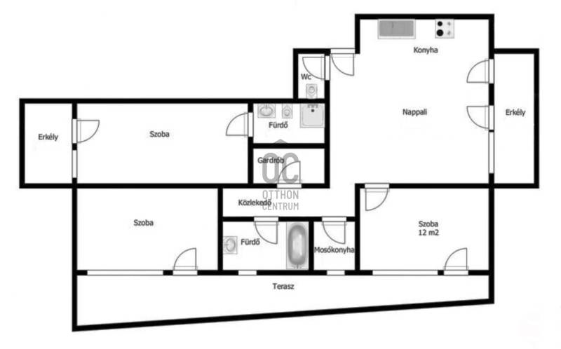
Alapterület: 110 m2
Fűtés: házközponti egyedi méréssel
Állapota: -
Szobák száma: 4
Építés éve: 2010
Szintek száma: -

Részletes leírás

LAKÁS ÖSSZEFOGLALÓA Marina parton, a 2011-ben átadott Duna Terasz Lakópark 7. emeletén, K-D-NY-i fekvésű, duplakomfortos (kádas és zuhanyzós fürdőszobával is rendelkezik) + 4 szobás + gardróbhelyiséggel és mosókonyhával rendelkező, 3 teraszos családi otthon eladó. A lakás beépített bútorokkal rendelkezik, minden ablak elektromos redőnyökkel és szúnyoghálóval felszerelt. A lakás elosztása kiváló, hiszen ötvözi a praktikus tárolási megoldásokat (gardrób, mosókonyha), a kényelmet (külön fürdőszobák+ külön WC), valamint a közösségi és privát terek szeparáltságát.- A lakáshoz 2 db teremgarázs hely és tároló vásárlása opcionális. - Közös költség: 45.000 HUF/hóDUNA TERASZ LAKÓPARKA 2011-ben átadott Duna Terasz tiszta és folyamatosan karbantartott kerttel rendelkezik. A lakók biztonságáról 0-24h őrszolgálat és kamerarendszer gondoskodik.MARINA PARTA Marina Part első ütemének elkészülte óta a főváros prémium városrészének számít. A Duna közelsége, a modern lakóépületek, tökéletes intézményi ellátottság, a kiváló infrastruktúra és a belváros gyors elérhetőségének is köszönhetően egy életre szóló befektetés. A sétányon parkok, modern játszóterek, sportpályák és fitneszterem is várja a kikapcsolódni vágyókat, emellett éttermek, kávézók, reggelizők és élelmiszerboltok is gondoskodnak a lakók ellátásáról. Ez nem csupán egy lakónegyed, hanem egy életérzés, amelyet a modern lakhatás kényelme és a városi pezsgés egyedülálló kombinációja jellemez.Jöjjön el és érezze át a Marina Part egyedi hangulatát, várom hívását!Huga PéterOtthon Centrum - Marina part

További adatok

Telekterület: -
Kert mérete: -
Erkély mérete: 29 m2
Felszereltség: -
Parkolás: -
Kilátás: kertre néző
Egyéb extrák:  
-

Hirdető adatai

Hirdető neve: Otthon Centrum
Kapcsolattartó: Huga Péter Sándor
Hirdető telefonszáma: +36 70 469 3781
Honlap: -