Ház
Origó
HázOrigoval pont a központban

Pest megye, Szentendre


Szentendre 

Ingatlan adatai

Irányár: 95 900 000 Ft
Típus: lakás (újépítésű)
Kategória: eladó
Alapterület: 85 m2
Fűtés: -
Állapota: új
Szobák száma: 3
Építés éve: 2020
Szintek száma: -

Részletes leírás

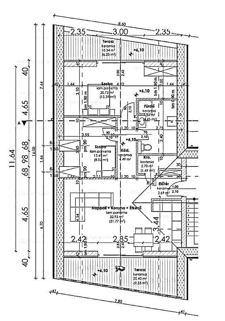
SZENTENDERÉN, ELADÓ EGY 2. EMELETI ÚJÉPÍTÉSŰ TÁRSASHÁZI LAKÁS!KÖRNYÉK:A lakás csendes, nyugodt környezetben helyezkedik el, 2 perc sétára található a buszmegálló, így könnyen megközelíthető Szentendre központja, vagy akár Budapest is. A Spar egy 20 perces sétával könnyedén megközelíthető. A közelben számos cukrászda elérhető, emellett dohánybolt, gyógyszertár is van a közelben.A HÁZ JELLEMZŐI:-A lakás alapterülete: 85 nm.-Plusz 2db erkély: 10,4 nm és 20,4 nm.-Az társasház 2020-ban épült 38 cm-es POROTHERM téglából és 15 cm-es Dryvit szigetelést kapott.-A nyílászárók 3 rétegű műanyagból vannak.-A fűtésért egy Baxi márkájú kondenzációs gázkazán felel.-3 db klíma került beszerelésre a lakásba, amelyek fűtő-hűtő funkciót is ellátnak. -A rezsi körülbelül 30-35 ezer Ft körül alakul.-Közös költség: 12 ezer Ft.-A lakáshoz tartozik egy kültéri parkolóhely, mely elektromos úszókapuval van elzárva.FINANSZÍROZÁS:- Banki finanszírozással is megvásárolható, melyben irodánk ingyenes tanácsadással áll rendelkezésükre!- Az energetikai besorolása miatt, az ingatlanra kedvezményes hitel igényelhető.VEVŐINK RÉSZÉRE A KÖZVETÍTÉS DÍJTALAN! A hirdetésben szereplő adatok tájékoztató jellegűek!

További adatok

Telekterület: -
Kert mérete: -
Erkély mérete: -
Felszereltség: -
Parkolás: -
Kilátás: utcai
Egyéb extrák:  
-

Hirdető adatai

Hirdető neve: MPD Hungary Kft.
Kapcsolattartó: Prossima Casa Kft.
Hirdető telefonszáma: +36202625260
Honlap: -