Ház
Origó
HázOrigoval pont a központban

Szabolcs-Szatmár-Bereg megye, Döge


 

Ingatlan adatai

Irányár: 25 000 000 Ft
Típus: ház
Kategória: eladó
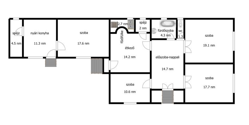
Alapterület: 120 m2
Fűtés: egyéb
Állapota: -
Szobák száma: 4
Építés éve: 1988
Szintek száma: -

Részletes leírás

Megvételre kínálok Dögében főutcán, egy 1988 -ban szilikátból épült, ondulin bitumenes lemezzel fedett családi házat, 2406 nm -es, 13.5 méter széles telken. Az ingatlan belső elrendezése átgondolt, tágas, az előszoba-nappalit valamint két szobáját, keményfa parkettával, a harmadik szobát laminált padlóval, a többi helyiséget (az étkezőt, a főzőfülkét, a külön wc-t és a fürdőszobát) járólappal burkolták. A nyílászárók még az eredetiek, fából készültek, az ablakokat redőnnyel szerelték fel. A melegről központi fűtés gondoskodik, ami vegyes tüzelésű és gázcirkó kazánnal is működtethető. Az épület folytatásaként külön lakrész található (spájz, konyha, valamint egy szoba) ami a főépülettel egy ajtóval össze is nyitható. Az udvaron különálló raktár-tároló található.Döge eladó családi házAz ingatlanról készült videó megtekinthető: http://youtu.be/PXkroH_NJRY

További adatok

Telekterület: 2 406 m2
Kert mérete: 2 406 m2
Erkély mérete: 6 m2
Felszereltség: -
Parkolás: -
Kilátás: -
Egyéb extrák:  
-

Hirdető adatai

Hirdető neve: Otthon Centrum
Kapcsolattartó: Czeglédi Csaba
Hirdető telefonszáma: +36 70 388 5416
Honlap: -