Ház
Origó
HázOrigoval pont a központban

Hajdú-Bihar megye, Debrecen


 

Ingatlan adatai

Irányár: 129 000 000 Ft
Típus: ház
Kategória: eladó
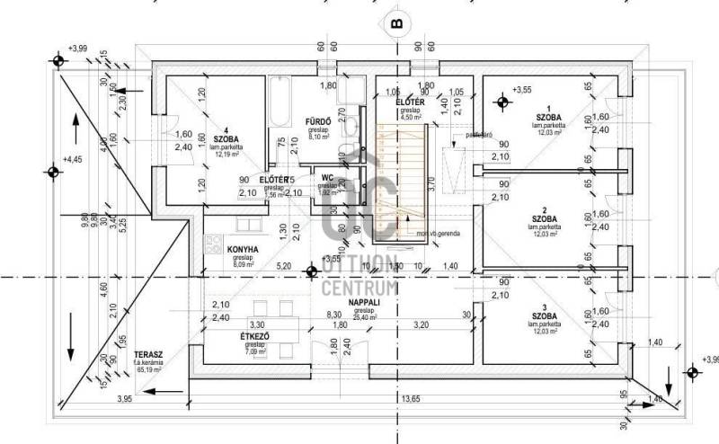
Alapterület: 130 m2
Fűtés: -
Állapota: új
Szobák száma: 5
Építés éve: 2025
Szintek száma: -

Részletes leírás

Eladó új építésű luxus okosotthon Debrecenben, a Csapókertben!Debrecen egyik kedvelt, nyugodt részén eladó egy új építésű(2025), 130 nm-es prémium okoslakás, amely a legkorszerűbb épületgépészeti megoldásokkal készült.Egy különleges lehetőséget kínálunk: egy telken két teljesen elkülönített, önálló bejárattal és garázzsal rendelkező luxuslakás került kialakításra, így mindkét ingatlan megőrzi a teljes privát szférát, miközben a legmodernebb építészeti és gépészeti megoldásokat ötvözi egy letisztult, prémium kivitelű otthonban.- Emeleti lakás -✨ Főbb jellemzői:✅ 4 tágas hálószoba, 40nm-es amerikai konyhás nappali✅ 65 nm-es terasz✅ 30 nm-es garázsMűszaki felszereltség:- Hőszivattyús fűtés-hűtés rendszer- Padló- és mennyezetfűtés, valamint mennyezethűtés- Elektronikusan szabályozható hőmérséklet helyiségenként- Energiahatékony működés: megújuló energiaforrások felhasználásával akár 55%-os energia-megtakarítás érhető el- Elektromos bojler 120 literes kapacitással biztosítja a melegvizetModern okosotthon rendszer- Riasztórendszer előkészítve- Elektromos autótöltő kiépítve- Magas szintű víz-, hang- és hőszigetelés – a legújabb szabványoknak megfelelő kivitelezésselEz az otthon korszerű, energiatakarékos és maximális kényelmet nyújt, így tökéletes választás mindazok számára, akik egy hosszú távon fenntartható, minőségi lakókörnyezetet keresnek.Ne maradjon le erről a kivételes lehetőségről!Hívjon még ma és nézze meg személyesen!

További adatok

Telekterület: 200 m2
Kert mérete: 200 m2
Erkély mérete: 65 m2
Felszereltség: -
Parkolás: -
Kilátás: -
Egyéb extrák:  
-

Hirdető adatai

Hirdető neve: Otthon Centrum
Kapcsolattartó: Takács-Sós Fanni
Hirdető telefonszáma: +36 70 469 3351
Honlap: -