Ház
Origó
HázOrigoval pont a központban

Tolna megye, Szekszárd


 

Ingatlan adatai

Irányár: 15 000 000 Ft
Típus: kereskedelmi/ipari ingatlan
Kategória: eladó
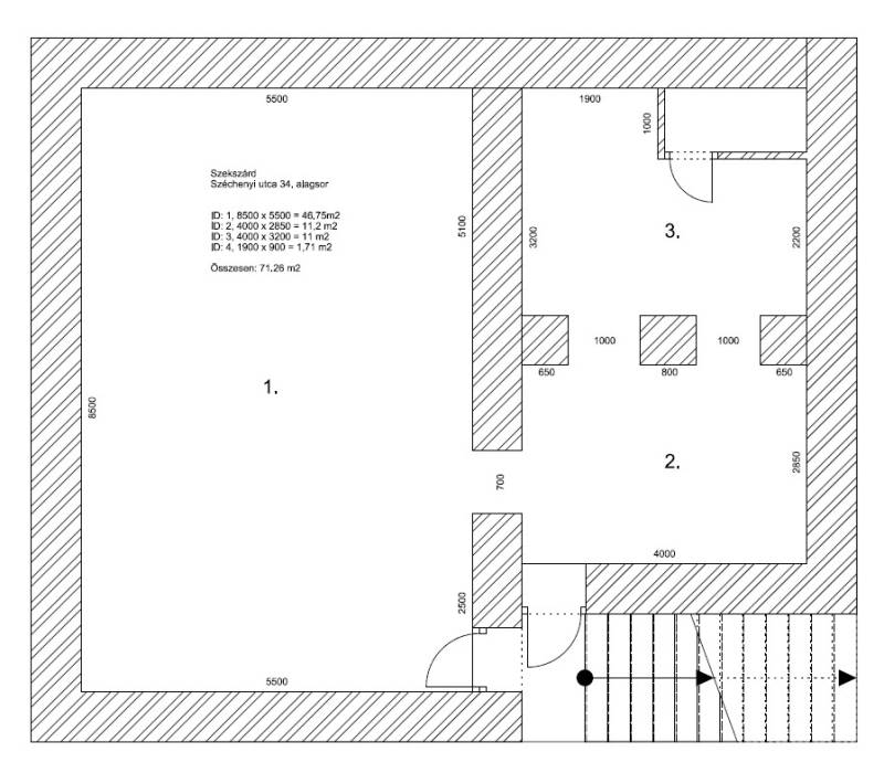
Alapterület: 72 m2
Fűtés: -
Állapota: -
Szobák száma: -
Építés éve: -
Szintek száma: -

Részletes leírás

Szekszárd frekventált, belvárosi részén kínálunk megvételre egy 72 m²-es alagsori üzlethelyiséget, amely kiváló lehetőség vállalkozóknak, befektetőknek! Főbb jellemzők:- Tágas, 72 m²-es alapterület- Klímával és hővisszanyerős szellőztető rendszerrel felszerelt- Új vízvezeték és darálós WC- Új villanyóraRégi villanyvezeték – kisebb korszerűsítést igényelhetKedves Ügyfelünk, az ingatlanról videót is készítettünk. Ha ezt a hirdetést az Otthon Centrum weboldalán nézi, akkor a videóra a képek után tud kattintani. Ha egy másik weboldalon találta ezt a hirdetést, kérem nyissa meg az Otthon Centrum weboldalát, kattintson a „Regisztrációs szám keresése” menüpontra, és írja be ezt a regisztrációs számot a keresőbe: UZ018866 Itt meg tudja tekinteni az ingatlanról készült videót. Vagy írjon nekem, és szívesen elküldöm a videót.Az ingatlan sokféle célra alkalmas: üzlethelyiség, iroda, szolgáltatóhely, stúdió vagy akár raktár kialakítására is remek választás.A HIRDETÉSBEN SZEREPLŐ ÁR NETTÓ ÁR, ERRE +27% ÁFA SZÁMÍTANDÓ, ÍGY A BRUTTÓ ÁRA 19.050.000 FtAkár KFT-vel együtt is eladó!

További adatok

Telekterület: -
Kert mérete: -
Erkély mérete: -
Felszereltség: -
Parkolás: -
Kilátás: -
Egyéb extrák:  
-

Hirdető adatai

Hirdető neve: Otthon Centrum
Kapcsolattartó: Máté Dóra
Hirdető telefonszáma: +36 70 469 3581
Honlap: -