Ház
Origó
HázOrigoval pont a központban

Budapest, VIII.kerület


 

Ingatlan adatai

Irányár: 190 000 000 Ft
Típus: lakás (tégla)
Kategória: eladó
Alapterület: 85 m2
Fűtés: gáz (cirko)
Állapota: -
Szobák száma: 3
Építés éve: -
Szintek száma: -

Részletes leírás

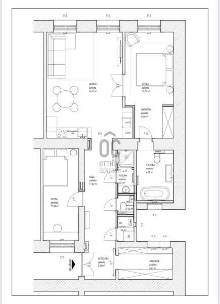
Most lett teljes körűen felújítva ez a minden részletében átgondolt, különleges hangulatú , 3 szobás, 88 m2-es otthon, amely egy gyönyörűen rendbe hozott, liftes, elegáns társasház 2. emeletén található a Bródy Sándor utcában. A lakás kialakítását és belsőépítészeti terveit lakberendező álmodta meg, a kivitelezés során pedig prémium minőségű anyagok kerültek beépítésre.Főbb jellemzők:-88 nm-es lakás (tulajdoni lap szerint 85 nm)-2 külön nyíló hálószoba (-2 külön gardróbhelyiség, egyik ablakos, így harmadik hálószobává alakítható-Tágas, világos amerikai konyhás nappali-Utcai nézet, kellemes természetes fény-Teljes bútorzat és dekoráció az ár részét képezi❄️ Műszaki tartalom:-Minden szobában hűtő-fűtő klíma-Padlófűtés + kombi kazán-Elektromos redőnyök-Bioetanol kandalló-Bosch konyhai gépek-Tölgyfa parketta-Egyedi gyártású beépített bútorok-Szigetelt fa nyílászárókLokáció:A Palotanegyed egyik legnépszerűbb utcájában, kiváló közlekedéssel, hangulatos kávézók, éttermek és kulturális intézmények közvetlen közelében.Ez a lakás ideális választás igényes otthont keresőknek, de befektetők számára is remek lehetőség, hiszen elhelyezkedése és kialakítása miatt azonnal kiadható, prémium kategóriás ingatlanként.Ne maradj le erről az egyedi ajánlatról – ez az otthon tényleg ritkaság!Egyedi igényekre szabott lakáshitelekkel állunk rendelkezésére. Bankfüggetlen Hitelcentrumunk az országban elérhető összes bank és hitelintézet ajánlatát versenyezteti az Ön számára díjmentesen.Munkatársaink nagy szakmai tapasztalattal várják Önt az előre egyeztetett időpontban akár a normál munkaidő után is.Bővebb információért és a megtekintéssel kapcsolatban hívjon bizalommal!

További adatok

Telekterület: -
Kert mérete: -
Erkély mérete: -
Felszereltség: -
Parkolás: -
Kilátás: utcai
Egyéb extrák:  
-

Hirdető adatai

Hirdető neve: Otthon Centrum
Kapcsolattartó: Salánki Teodóra
Hirdető telefonszáma: +36 70 716 9101
Honlap: -