Ház
Origó
HázOrigoval pont a központban

Veszprém megye, Hárskút


 

Ingatlan adatai

Irányár: 100 000 000 Ft
Típus: ház
Kategória: eladó
Alapterület: 114 m2
Fűtés: -
Állapota: felújított
Szobák száma: 2
Építés éve: -
Szintek száma: -

Részletes leírás

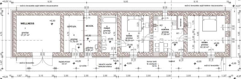
A Dunántúl legmagasabban fekvő településén, a Bakony szívében luxus szinten felújított, 114 m2-es, tornácos parasztház 768 m2-es, rendezett, szép telken keresi új, szerető gazdáját. Kiváló levegő, csend, nyugalom, harmónia.A kő falak kivétel, teljes felújításon esett át az ingatlan. 10 cm kőzetgyapot hőszigetelés a homlokzati falakon, 15 cm fújt hőszigetelés a födémen, egy része osb borítást is kapott. 10 cm. lépésálló polisztirol alapú hőszigetelés az aljzatban. Új tetőszerkezet cseréphéjalással. Radiátoros fűtés, a visszamenő fűtéscsövek a padlóban kerültek elvezetésre, ezáltal a kerámia padlóburkolat hőérzete is kellemes a fűtési szezonban. Egyedi kőrisfa ablakok 4 rétegű hő- és hangszigetelt üvegezéssel. Antikolt fa gerendák és födém. Egyedi, kőrisfa bútorok, belső ajtók, ajtó tokok. Egymással harmonizáló bútorok, nyílászárók. Új víz, csatorna, villany és gáz vezetékek, gépészet. Immergas 12 KW-os hőszivattyú + 300 literes meleg víz tartály. Kiegészítésként 24 KW-os Immergas gázkazán. 1-1 db. hűtő-fűtő klíma a wellness részen és a lakás közepén elhelyezkedő konyha-étkezőben. Agyagkandalló. Egyedileg színterezett ereszcsatorna rendszer. Napkollektor, napelem. Infra szauna, elektromos és fafűtésű akril dézsa, esőztető zuhany, külön wc a wellness részlegben. Fedett terasz épített grillel, egyedi tölgy étkezővel. Füstölő. Réz csapok, mosogató. Beépített, teljesen gépesített konyha. Kültéri, beltéri hangulatvilágítások, lámpák. Kültéri, beltéri dísztárgyak. Elektromos nagy kapu. 3 gépkocsi részére térkövezett parkoló. Kerti csap. Száraz, hűvös pince. Rendezett kert dísznövényekkel, gyümölcsfákkal. Riasztó, kamerarendszer. 3x32 Amper áramerősség.Az ingatlant csak irodánk kínálatában találja. Hívjon bizalommal!

További adatok

Telekterület: 768 m2
Kert mérete: 768 m2
Erkély mérete: 20 m2
Felszereltség: -
Parkolás: -
Kilátás: -
Egyéb extrák:  
-

Hirdető adatai

Hirdető neve: RARIK-1986 Kft.
Kapcsolattartó: Roland Vörös
Hirdető telefonszáma: 06-20-571-8880
Honlap: -