Ház
Origó
HázOrigoval pont a központban

Veszprém megye, Balatonrendes


 

Ingatlan adatai

Irányár: 79 900 000 Ft
Típus: ház
Kategória: eladó
Alapterület: 95 m2
Fűtés: -
Állapota: új
Szobák száma: 4
Építés éve: 2026
Szintek száma: -

Részletes leírás

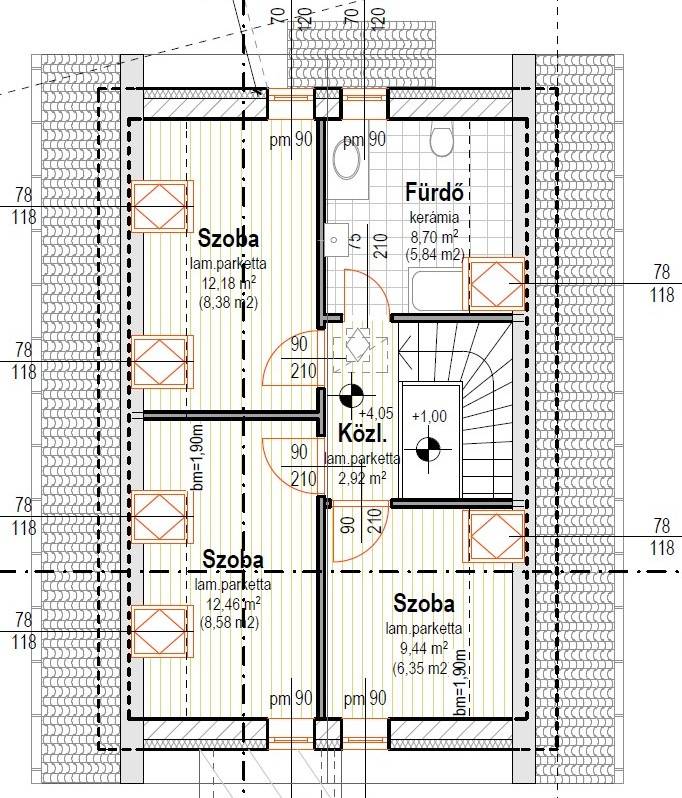
Balatonrendesen a Pálkövei strandtól 1,5 km-re, csendes kis mellékutcában új építésű, 95 m2-es, nappali + 3 szobás, 2 fürdőszobás, kétszintes, új építésű lakóházak 900 m2-es telken magas műszaki tartalommal 2026 I. negyedévi átadással kulcsrakészen eladók. Falusi CSOK, CSOK plusz, Otthon Start hitel igényelhető. Az ingatlanokat csak irodánk kínálatában találja. A nagyobb telekrészes ingatlan már elkelt. Elektromos kapuknak kiállás, riasztó vezetékelve, minőségi burkolatok, szaniterek, belső ajtók. Fisher hőszivattyú biztosítja a padlófűtést és szintenként 1-1 db. magasfali fan coil-ok a hűtést és a plusz fűtést. A használati meleg vizet villanybojler állítja elő. 3 rétegű üvegezésű homlokzati nyílászárók. Rejtett redőnytokos kialakítás a homlokzati nyílászárók felett. 25 cm hőszigetelés a tetőtérben. 30 cm-es főfalak 15 cm dryvit hőszigeteléssel. Felszíni gépkocsibeállók. Kerítéssel elválasztott kert, terasz.Bankfüggetlen, díjmentes hiteltanácsadás Magyarország piacvezető hitelközvetítője által. Kedvező ügyvédi díj. Hívjon bizalommal!

További adatok

Telekterület: 365 m2
Kert mérete: 365 m2
Erkély mérete: 10 m2
Felszereltség: -
Parkolás: -
Kilátás: -
Egyéb extrák:  
-

Hirdető adatai

Hirdető neve: RARIK-1986 Kft.
Kapcsolattartó: Roland Vörös
Hirdető telefonszáma: 06-20-571-8880
Honlap: -