Ház
Origó
HázOrigoval pont a központban

Szabolcs-Szatmár-Bereg megye, Nyíregyháza


 

Ingatlan adatai

Irányár: 56 606 000 Ft
Típus: lakás (újépítésű)
Kategória: eladó
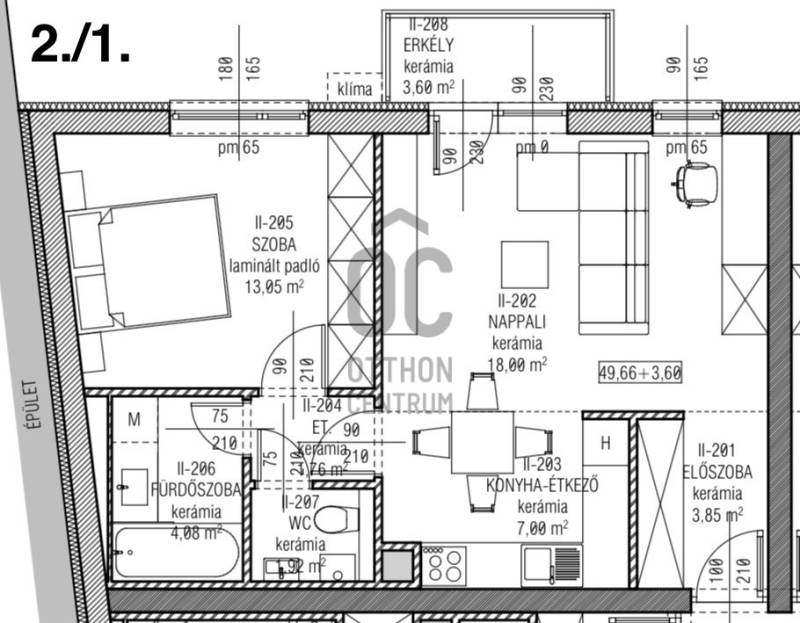
Alapterület: 50 m2
Fűtés: gáz (cirko)
Állapota: új
Szobák száma: 2
Építés éve: 2026
Szintek száma: -

Részletes leírás

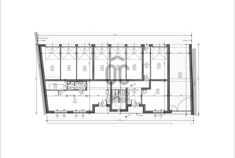
Új építésű lakás a Hatzel tér közelében – kényelmes és modern otthon pároknak vagy befektetőknekEladó egy 1 szobás, tágas amerikai konyhás nappalival rendelkező, új építésű lakás, amely tökéletes választás pároknak vagy befektetési céllal keresőknek. A lakás külön fürdőszobával és WC-vel rendelkezik, így a mindennapi kényelem biztosított.Minden lakáshoz saját erkély tartozik, ahol kellemesen lehet kikapcsolódni, reggelizni, vagy egyszerűen élvezni a friss levegőt. A belső terek praktikus és esztétikus burkolatokat kaptak: a szobákban laminált parketta, míg a többi helyiségben járólap burkolat található, így könnyen tisztán tartható és modern megjelenésű a lakás.A lakók kényelmét szolgálja a földszinti közös tároló, amely a biciklik, babakocsik vagy szezonális tárgyak elhelyezésére is ideális. Az udvar közösen használható, amely kellemes, zöld pihenő- és játékteret biztosít a lakóknak.Az autótulajdonosok számára garázs és udvari gépkocsibeálló külön megvásárolható, így biztosított a kényelmes és biztonságos parkolás.Ez a lakás modern kialakítású, praktikus elrendezésű és kényelmes, ideális választás saját otthonnak vagy befektetés céljára, hiszen az új építésű ingatlanok iránt mindig nagy a kereslet. A Hatzel tér közelsége garantálja a jó közlekedést és a szolgáltatások könnyű elérhetőségét.A hirdetésben szereplő információk a megbízótól kapott adatok alapján készültek, pontosságukért felelősséget nem vállalunk!Amennyiben vásárláshoz hitelre is szüksége van, független hitel tanácsadónk ingyenesen tud Önnek segítséget nyújtani a legjobb konstrukciók kiválasztásában és a folyamat lebonyolításában. Irodánk kereső ügyfeleinknek teljes körű szolgáltatást nyújt, szakszerű tanácsadással, energetikai tanúsítvány elkészítésével, hitelügyintézéssel és profi ügyvédi segítséggel. Abban az esetben ha az ingatlan felkeltette érdeklődését keressen bizalommal!Projekt bemutatásaÚj építésű, amerikai konyhás, 1 szobás lakások eladók Nyíregyháza belvárosában, a Hatzel tér közelében! A 10 lakásos társasház csendes utcában épül, erkélyes lakásokkal, garázs- és udvari beálló lehetőséggel. 30-as szigetelés, 3 rétegű nyílászárók, padlófűtés, klíma – minden adott a modern élethez. Átadás: 2026 nyár. Foglaljon időben!Garázs: 10.000.000 Ft Udvari beálló: 3.000.000 Ft1.emelet1.lakás: 49,66 nm + 3,60 nm erkély2.lakás: 48,16 nm + 3,60 nm erkély3.lakás 46,39 nm + 3,60 nm erkély4.lakás 48,29 nm + 3,24 nm loggia ELKELT!5.lakás 48,55 nm + 3,24 nm loggia 2. emelet1.lakás: 49,66 nm+ 3,60 nm erkély2.lakás: 48,16 nm + 3,60 nm erkély3.lakás: 46,39 nm + 3,60 nm erkély4.lakás: 45,61 nm + 3,24 nm loggia5.lakás: 45,63 nm + 3,24 nm loggia

További adatok

Telekterület: -
Kert mérete: -
Erkély mérete: 4 m2
Felszereltség: -
Parkolás: -
Kilátás: udvari
Egyéb extrák:  
-

Hirdető adatai

Hirdető neve: Otthon Centrum
Kapcsolattartó: Ugrai Roland
Hirdető telefonszáma: +36 70 716 8651
Honlap: -