Ház
Origó
HázOrigoval pont a központban

Fejér megye, Aba


 

Ingatlan adatai

Irányár: 64 900 000 Ft
Típus: ház
Kategória: eladó
Alapterület: 91 m2
Fűtés: -
Állapota: új
Szobák száma: 4
Építés éve: 2025
Szintek száma: -

Részletes leírás

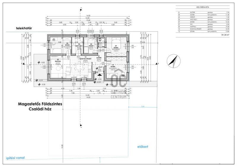
Aba csendes utcájában eladó egy 91,34 négyzetméter alapterülettel rendelkező 4 szobás ÚJÉPÍTÉSŰ családi ház!Referencia ház Abán megtekinthető!!! Most kezdődő építkezés. (Az előző építkezésből elkészült ház fotói láthatóak, amit referencia anyagként mutatunk be.)Az ingatlanhoz 543 négyzetméter kizárólagos használatú telekméret tartozik, amely nagyságának köszönhetően lehetőséget biztosít a kert szélesebb körű kihasználására.Rövid műszaki leírás:* Amerikai konyhás nappali étkezővel, 3 szoba, 1 fürdőszoba, külön mellékhelyiség, háztartási helyiség, terasz, 1 kocsibeálló* 91,34 nm hasznos alapterület + 12 nm-es terasz* Telek mérete: 543 nm* A ház Porotherm 30-as tégla falazattal épül* Szigetelés: 15 cm homlokzati hőszigetelés, 12 cm aljzatszigetelés, 25 cm padlásszigetelés* Fűtés: hőszivattyú, mindenhol padlófűtés* Tető: 30 fokos nyeregtető, fa födém, cseréppel fedett* Nyílászárók: 3 rétegű műanyag ablakok, fa beltéri ajtók* Bejárat ajtó: műanyag, több ponton záródó* Elektromos hálózat 3*16A* Burkolat: nappaliban, konyhában, közlekedő részen, fürdőszobában, mellékhelyiségben járólap, szobákban laminált parketta.Kiváló választás gyermekvállalás előtt álló fiatal párnak, időseknek, vagy gyermeküktől már külön élő középkorúaknak is ideális.Környék:A ház csendes, családi házas övezetben kiváló lokációval rendelkezik.Abán megtalálható bölcsőde, óvoda, általános iskola, gimnázium, orvosi rendelő, gyógyszertár járóbeteg szakrendelő, és kormányablak is. Buszmegálló is mindösszesen 550 m sétára van.Bővebb műszaki és egyéb információért várom jelentkezését!Amennyiben hitelre van szüksége, az Otthon Centrum az ország egyik legnagyobb és legmegbízhatóbb hitelközvetítőjeként, teljes körű és díjmentes hitel ügyintézéssel, áll ügyfelei rendelkezésére.Kérje személyre szabott ajánlatunkat!eladó, újépítésű, fejér megye, aba, családi ház, tégla, 91 m2, telek, nagycsaládos, 4 szoba, amerikai konyhás, hőszivattyú,

További adatok

Telekterület: 543 m2
Kert mérete: 543 m2
Erkély mérete: -
Felszereltség: -
Parkolás: -
Kilátás: -
Egyéb extrák:  
-

Hirdető adatai

Hirdető neve: Otthon Centrum
Kapcsolattartó: Zóka Erika
Hirdető telefonszáma: +36 70 388 6161
Honlap: -