Ház
Origó
HázOrigoval pont a központban

Budapest, XVIII.kerület


 

Ingatlan adatai

Irányár: 164 900 000 Ft
Típus: ház
Kategória: eladó
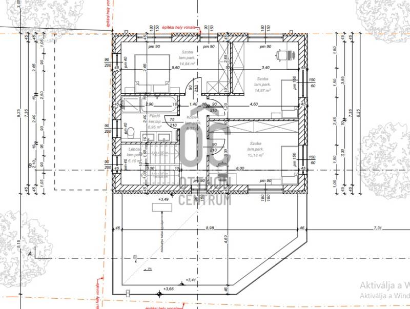
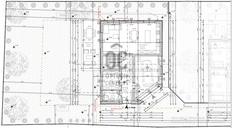
Alapterület: 168 m2
Fűtés: -
Állapota: új
Szobák száma: 5
Építés éve: 2025
Szintek száma: -

Részletes leírás

Egy igazán különleges lehetőség vár rád Budapest 18. kerületében!Ha családos vagy, és egy új, modern otthonra vágysz, akkor ez az új építésű családiház garantáltan elnyeri tetszésedet.Az ingatlan két szintes, 168 négyzetméteren terül el, nappali + 4 hálószobás, 2 fürdőszobás és 600 négyzetméteres telekkel rendelkezik, amely bővítési lehetőségeket is kínál.A tágas nappali a családi élet szíve, ahol a közös pillanatok igazán emlékezetessé válhatnak.A 24 négyzetméteres terasz pedig tökéletes helyszín a nyári esték eltöltésére, ahol a zöldkerti kilátás mellett élvezheted a friss levegőt.A közlekedési csomópont közelsége miatt a közlekedés kitűnő, így könnyedén elérheted Budapest bármely részét. A csendes környék ideális választás családok számára, ahol a gyerekek biztonságban játszhatnak a szabadban. A modern építkezés prémium kivitelezéssel készült, és megújuló fűtési rendszerrel, valamint klímával van felszerelve, így a fenntartási költségek is alacsonyak. A felkapott környék és a folyamatosan növekvő ingatlanpiac miatt ez a ház nemcsak a családod számára ideális, hanem hosszú távú befektetésként is megállja a helyét.A világos, tágas terek és a modern kialakítás minden igényt kielégít. !! Átadás 2025. december.A kivitelező megbízható, évtizedes építési tapasztalattal, a környéken számos referencia házzal!!Ne habozz, hiszen egy ilyen kivételes ingatlan gyorsan gazdára talál!Ha kérdéseid lennének, vagy szeretnéd megtekinteni az ingatlant, bizalommal kereshetsz!

További adatok

Telekterület: 600 m2
Kert mérete: 600 m2
Erkély mérete: 24 m2
Felszereltség: -
Parkolás: -
Kilátás: -
Egyéb extrák:  
-

Hirdető adatai

Hirdető neve: Otthon Centrum
Kapcsolattartó: Orbayné Andrea
Hirdető telefonszáma: +36 70 388 5671
Honlap: -