Ház
Origó
HázOrigoval pont a központban

Hajdú-Bihar megye, Debrecen


 

Ingatlan adatai

Irányár: 79 900 000 Ft
Típus: lakás (újépítésű)
Kategória: eladó
Alapterület: 50 m2
Fűtés: -
Állapota: új
Szobák száma: 2
Építés éve: 2025
Szintek száma: -

Részletes leírás

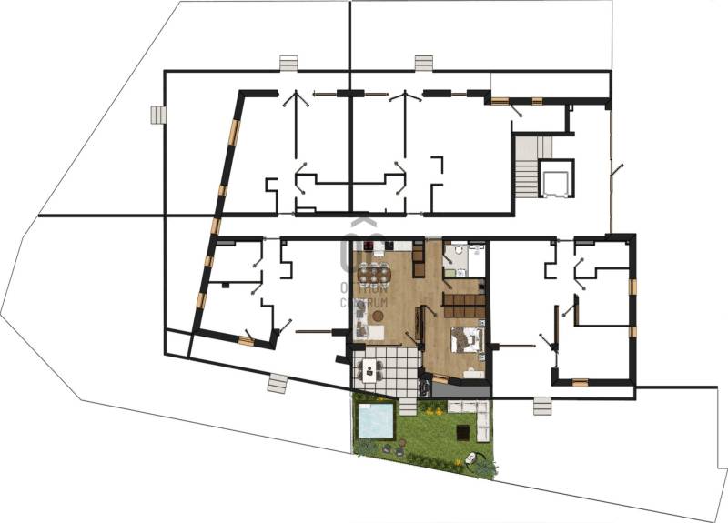
Debrecen frekventált városrészében, a Postakertben új építésű, 37-75 nm-es prémium lakások eladók. A 17 lakásos, liftes, 3 emeletes épületben a privát kertkapcsolatos lakásoktól a penthousig mindent megtalál.Ez a földszinti kertkapcsolatos lakás 50 nm-es, nappali-étkező-konyha +1 szobás, 10,6 nm-es terasszal és 32 nm-es kerttel.Jellemzők:-Kulcsrakész, precíz kivitelezés, magas színvonalú burkolatokkal és szaniterekkel-Hőszivattyús fűtési rendszer padlófűtéssel, hőszivattyús klímák- Modern hőközpont, lakásokban egyedi rádiós almérőkkel-3 rétegű műanyag nyílászárók a kiváló hő- és hangszigetelés érdekében-Extra hőmegtartó képességű innovatív, Porotherm X-therm tégla falazat, grafitos homlokzati hőszigeteléssel-Személyfelvonó-Zárt lépcsőház, modern homlokzat-Kiváló energetikai besorolás, alacsony fenntartási költségek-Riasztórendszer előkészítés-Rejtett redőnytok elektromos kiállással-Tágas, világos belső terek prémium nyílászárókkal-Teremgarázs beállók, tárolók-Lift közvetlen eléréssel a parkoló szintrőlIskola, óvoda,tömegközlekedési lehetőségek a közelben, a belváros gyalogosan is megközelíthető. Autópálya felhajtó, bevásárló központok 3 perc autóútra vannak. Ideális választás családoknak, pároknak vagy befektetőknek. Ha új építésű, energiatakarékos, kulcsrakész otthonra vágyik zöld környezetben, ne hagyja ki ezt a lehetőséget!Projekt bemutatása-

További adatok

Telekterület: -
Kert mérete: -
Erkély mérete: 11 m2
Felszereltség: -
Parkolás: -
Kilátás: kertre néző
Egyéb extrák:  
-

Hirdető adatai

Hirdető neve: Otthon Centrum
Kapcsolattartó: Rácz Zsolt
Hirdető telefonszáma: +36 70 469 3726
Honlap: -