Ház
Origó
HázOrigoval pont a központban

Pest megye, Sülysáp


 

Ingatlan adatai

Irányár: 65 000 000 Ft
Típus: ház
Kategória: eladó
Alapterület: 87 m2
Fűtés: -
Állapota: új
Szobák száma: 4
Építés éve: 2025
Szintek száma: -

Részletes leírás

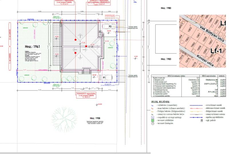
Sülysápon, a Vak Bottyán utca 9. szám alatt, 719 m²-es telken kínálunk eladásra egy új építésű, kulcsrakész ikerház mindkét felét.Az egyik ikerfél nettó 87,12 m² hasznos alapterülettel és 19,5 m²-es terasszal , a másik 86,32 m² nettó alapterülettel és 24,6 m²-es terasszal rendelkezik. A bal oldali lakáshoz 433 m²-es, a jobb oldalihoz 302 m²-es telekrész tartozik.A bal oldali ikerfél elkelt!Az épület Porotherm P30N+F téglából, betonkoszorúval és fa födémes tetőszerkezettel készül. A lábazat 10 cm vastag lépésálló polisztirol, a homlokzat 10 cm-es Austrotherm grafitos hőszigetelést kap, a vízszintes födém pedig 25 cm ásványgyapot szigeteléssel kerül kialakításra.A nyílászárók háromrétegű üvegezésű, hat légkamrás, műanyag thermo kivitelben kerülnek beépítésre.A kiemelkedően alacsony energiaigényt a korszerű hőszigetelés mellett a megújuló energiát hasznosító gépészet biztosítja: a fűtésről levegő-víz hőszivattyús rendszer gondoskodik.Burkolatok , szaniterek, belső ajtók, csaptelepek választhatóak a következő értékhatárig:-Hidegburkolat: 3000 Ft.-/m2-Melegburkolat: 3000 Ft.-/m2-Beltéri ajtók: 30.000.Ft.-/db-Fürdőkád: 40.000.- Ft.--Csaptelepek: 15000.- Ft.-/dbMagasabb árú választás is lehetséges, a különbség finanszírozásával.A kivitelező korábban Sülysápon épített, már birtokbaadott ingatlanjait komoly érdeklődés esetén szívesen megmutatjuk referenciaként.Tervezett átadás 2026 második negyedévÉrdeklődő ügyfeleinknek a tervdokumetációt és a műszaki tartalmat készséggel rendelkezésre bocsájtjuk.INGYENES hitel tanácsadás, CSOK Plusz ügyintézés!BANKFÜGGETLEN hitelcentrumunk az összes elérhető bank és hitelintézet ajánlatát versenyezteti az Ön kedvéért, ráadásul DÍJMENTESEN.- Egyedi, bankfiókban nem elérhető kamat- és díjkedvezmények- Hitelképesség vizsgálat- Idő, energia és pénz megtakarítás- Teljes hivatali ügyintézésAmennyiben hirdetésem felkeltette az érdeklődését vagy egyéb információra van szüksége hívjon bizalommal!

További adatok

Telekterület: 433 m2
Kert mérete: 433 m2
Erkély mérete: 20 m2
Felszereltség: -
Parkolás: -
Kilátás: kertre néző
Egyéb extrák:  
-

Hirdető adatai

Hirdető neve: GDN Ingatlanhálózat
Kapcsolattartó: Horváth Péter
Hirdető telefonszáma: +36-70-606-2990
Honlap: -