Ház
Origó
HázOrigoval pont a központban

Budapest, XIV.kerület


 

Ingatlan adatai

Irányár: 171 827 833 Ft
Típus: lakás (újépítésű)
Kategória: eladó
Alapterület: 80 m2
Fűtés: -
Állapota: új
Szobák száma: 4
Építés éve: 2024
Szintek száma: -

Részletes leírás

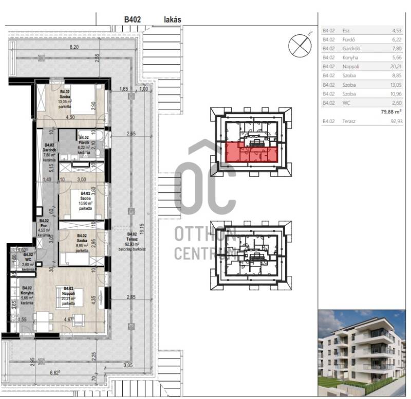
Igényes otthonok ZuglóbanZugló új városnegyedének központjában kimagasló műszaki felszereltséggel rendelkező lakások!A társasház 2 épületből áll, 22 + 22 lakásból. Kis létszámának köszönhetően nagyon családias és kellemes. A lakásokhoz mélygarázsban elhelyezett tárolók és parkolóhelyek tartoznak.PENTHOUSE LAKÁS, KISLÉTSZÁMÚ TÁRSASHÁZBAN!!!!- liftes társasház 4. emeletén 4 szobás ingatlan- 79,88 nm alapterületű, 92,93 nm terasszal- 4 szobás (amerikai konyhás nappali 26 nm, szobák 13,05 nm + 8,85 nm valamint 13,05 nm)- a tulajdonosok kényelmét biztosítja a 7 nm-es gardrób helyiség- fűtés, hűtés: levegős hőszivattyús rendszert használ, mennyezeti fűtés-hűtés kialakítással- a lakás belső ajtókkal, burkolatokkal, szaniterekkel kerül átadásra- gépkocsi beálló külön vásárolható- 3 rétegű hőszigetelő üvegezéssel, vakolható rejtett redőnydobozzal, elektromos alumínium redőnnyel-, távirányítóval.További információval, megtekintéssel kapcsolatban keressen bizalommal!Projekt bemutatásaZugló új városnegyedének központjában kimagasló műszaki felszereltséggel rendelkező lakások várják új tulajdonosaikat. Az ingatlanok modern kialakítása, látványos homlokzata, valamint a hőszivattyús fűtésrendszerük által biztosított alacsony rezsiköltség ideális választást jelentenek igényes, tudatos vásárlók és ingatlanbefektetők számára.Az épületek között zöld parkok és sétálóutcák kerülnek kialakításra, a beruházás átadása pedig 2026 első negyedévében várható.LOKÁCIÓA társasház közvetlenül az Uzsoki utcai kórház mögött található, a XIV. kerület egyik fő közlekedési csomópontjánál. A belvárosból és az agglomerációból egyaránt könnyen megközelíthető. Az Erzsébet királyné útján több buszjárat biztosít közvetlen kapcsolatot a belvárossal, míg a Mexikói úti M1 metróállomás gyalog mindössze 5 percre helyezkedik el. Az épület közelében található az M3 autópálya, amely az M0 körgyűrűvel összeköttetést biztosít, megkönnyítve az utazást.AZ ÉPÜLET JELLEMZŐIA társasház 44 lakásból áll, amelyekhez mélygarázsban elhelyezett tárolók és parkolóhelyek tartoznak.Nyílászárók és bejárati ajtók:A főbejárati ajtók szürke porszórt alumínium szerkezetűek, hő- és biztonságtechnikai szempontoknak megfelelő hőszigetelt üvegezéssel. A homlokzati nyílászárók 6 légkamrás Deco típusú, 3 rétegű hőszigetelő üvegezéssel rendelkeznek, vakolható rejtett redőnydobozzal és távirányítóval vezérelhető elektromos alumínium redőnnyel.Lakások jellemzői:A földszinti lakásokhoz terasz és kert is tartozik. Az épületekben födémbe integrált mennyezeti hűtő-fűtő rendszert építettek ki, amely egyedi hőmennyiség-mérőkkel szabályozható.Közösségi terek és zöld környezet:A belső udvar tájépítész által megtervezett, pihenésre alkalmas zöld környezetet kínál, ahol ültetett fák árnyékolnak, és a szezonális növények díszítik a területet. A locsolás automata öntözőrendszerrel biztosított.MŰSZAKI MEGOLDÁSOKFűtés és hűtés:Az épület energiatakarékos LG/SAMSUNG vagy azzal egyenértékű levegős hőszivattyús rendszert használ, mennyezeti fűtés-hűtés kialakítással. Az új lakók modern, környezetbarát megoldásokkal és kellemes zöld környezetben találhatják meg álomotthonukat.

További adatok

Telekterület: -
Kert mérete: -
Erkély mérete: 93 m2
Felszereltség: -
Parkolás: -
Kilátás: kertre néző
Egyéb extrák:  
-

Hirdető adatai

Hirdető neve: Otthon Centrum
Kapcsolattartó: Patai Erika
Hirdető telefonszáma: +36 70 716 9781
Honlap: -