Ház
Origó
HázOrigoval pont a központban

Vas megye, Sárvár


 

Ingatlan adatai

Irányár: 67 300 000 Ft
Típus: ház
Kategória: eladó
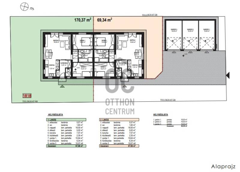
Alapterület: 68 m2
Fűtés: -
Állapota: új
Szobák száma: 3
Építés éve: 2026
Szintek száma: -

Részletes leírás

Újépítésü ikerház SárváronÚjépítésü ikerház SárváronAz ingatlanpiac egyik kiemelkedő ajánlatával szeretném megismertetni Önöket, amely ideális választás családosok számára.A modern, minden igényt kielégítő ikerház építése Sárvár kertvárosi részén, a belvárostól csupán néhány perc sétára, mégis csendes, zöld környezetben valósul meg. Az új építésű, kiváló állapotú ház 68 m²-es alapterülettel rendelkezik, és egy 170 m²-es kert tartozik hozzá, amely tökéletesen alkalmas a családi életre. Az ingatlan a nappalin kívül 2 hálószobával, és a fürdőszobán kívül még külön toalettel várja új lakóit. A ház amerikai konyhás elrendezése lehetővé teszi a közös időtöltést a családtagokkal, miközben a kertkapcsolatos lakás előnyei lehetőséget biztosítanak a szabadban való pihenésre és játékra. A nappaliból nyíló tágas terasz is a közös együttlét helyszíne lehet. A burkolatok kiválasztása még Önre vár, így olyan otthont álmodhat meg magának, ami teljesen Ön és családja ízlés és színvilágát tükrözi. Bizonyára értékelni fogják a prémium kivitelezést és a motoros redőnyök nyújtotta kényelmet. A hőszivattyús fűtés fenntartható és gazdaságos megoldás, amely hozzájárul az ingatlan alacsony rezsiköltségeihez, így Önnek nemcsak egy otthont, hanem egy hosszú távú befektetést is kínálunk. A környék csendes, kertvárosi jellegű, az utca átmenőforgalomtól mentes, ideális környezetet biztosít a családok számára. Közlekedés szempontjából is kiváló elhelyezkedéssel bír. A város központja könnyen elérhető gyalog vagy autóval, de a tömegközlekedési lehetőségek is széleskörűek, így a mindennapi ingázás nem jelent problémát. Ideális választás lehet azok számára is, akik a város forgatagában szeretnének élni, de értékelik a nyugodt, családias környezetet. Ez az exkluzív, modern ingatlan nem csupán lakóhely, hanem egy életstílus megtestesítője, amelyben a család minden tagja megtalálja a számításait.Az ingatlanhoz tartozik egy kocsibeálló, de opcionálisan garázs is vásárolható hozzá.Bízom benne, hogy felkeltettem érdeklődését, és örömmel várom kérdéseit, hogy további részletekkel szolgálhassak Önnek. Az ingatlan megtekintése során tapasztalhatja meg a helyszín varázsát és az ingatlan által kínált lehetőségeket. Kérem, ne habozzon kapcsolatba lépni velem, hiszen a legjobb ajánlatokért érdemes időben cselekedni!Hitelre van szüksége?Az Otthon Centrum az ország egyik legnagyobb és legmegbízhatóbb hitelközvetítőjeként, teljes körű és díjmentes hitel ügyintézéssel, biztosításkötéssel áll rendelkezésére! Kérje személyre szabott ajánlatunkat Kollégáinktól!Válassza ki az Önnek legmegfelelőbbet!Projekt bemutatásaAz ingatlanpiac egyik kiemelkedő ajánlatával szeretném megismertetni Önöket, amely ideális választás családosok számára.A modern, minden igényt kielégítő ikerház építése Sárvár kertvárosi részén, a belvárostól csupán néhány perc sétára, mégis csendes, zöld környezetben valósul meg. Az új építésű, kiváló állapotú 68 m²-es alapterülettel rendelkező lakások kertkapcsolattal rendelkeznek, így tökéletesen alkalmasak a családi életre. Az ingatlanok a nappalin kívül 2 hálószobával, és a fürdőszobán kívül még külön toalettel várják új lakóikat. Az amerikai konyhás elrendezés lehetővé teszi a közös időtöltést a családtagokkal, miközben a kertkapcsolatos lakás előnyei lehetőséget biztosítanak a szabadban való pihenésre és játékra. A nappaliból nyíló tágas terasz is a közös együttlét helyszíne lehet. A burkolatok kiválasztása még Önre vár, így olyan otthont álmodhat meg magának, ami teljesen Ön és családja ízlés és színvilágát tükrözi. Bizonyára értékelni fogják a prémium kivitelezést és a motoros redőnyök nyújtotta kényelmet. A hőszivattyús fűtés fenntartható és gazdaságos megoldás, amely hozzájárul az ingatlanok alacsony rezsiköltségeihez, így Önnek nemcsak egy otthont, hanem egy hosszú távú befektetést is kínálunk. A környék csendes, kertvárosi jellegű, az utca átmenőforgalomtól mentes, ideális környezetet biztosít a családok számára. Közlekedés szempontjából is kiváló elhelyezkedéssel bír. A város központja könnyen elérhető gyalog vagy autóval, de a tömegközlekedési lehetőségek is széleskörűek, így a mindennapi ingázás nem jelent problémát. Ideális választás lehet azok számára is, akik a város forgatagában szeretnének élni, de értékelik a nyugodt, családias környezetet. Ezek az exkluzív, modern ingatlanok nem csupán lakóhelyek, hanem egy életstílus megtestesítői, amelyekben a család minden tagja megtalálja a számításait.Az ingatlanokhoz tartozik egy-egy kocsibeálló, de opcionálisan garázs is vásárolható!Bízom benne, hogy felkeltettem érdeklődését, és örömmel várom kérdéseit, hogy további részletekkel szolgálhassak Önnek. A megtekintés során megtapasztalhatja a helyszín varázsát és az ingatlanok által kínált lehetőségeket. Kérem, ne habozzon kapcsolatba lépni velem, hiszen a legjobb ajánlatokért érdemes időben cselekedni!Hitelre van szüksége?Az Otthon Centrum az ország egyik legnagyobb és legmegbízhatóbb hitelközvetítőjeként, teljes körű és díjmentes hitel ügyintézéssel, biztosításkötéssel áll rendelkezésére! Kérje személyre szabott ajánlatunkat Kollégáinktól!Válassza ki az Önnek legmegfelelőbbet!

További adatok

Telekterület: 658 m2
Kert mérete: 658 m2
Erkély mérete: -
Felszereltség: -
Parkolás: -
Kilátás: -
Egyéb extrák:  
-

Hirdető adatai

Hirdető neve: Otthon Centrum
Kapcsolattartó: Horváth Ildikó
Hirdető telefonszáma: +36 70 469 3666
Honlap: -