Ház
Origó
HázOrigoval pont a központban

Pest megye, Ráckeve


 

Ingatlan adatai

Irányár: 21 000 000 Ft
Típus: nyaraló
Kategória: eladó
Alapterület: 58 m2
Fűtés: egyéb
Állapota: -
Szobák száma: 4
Építés éve: 1980
Szintek száma: -

Részletes leírás

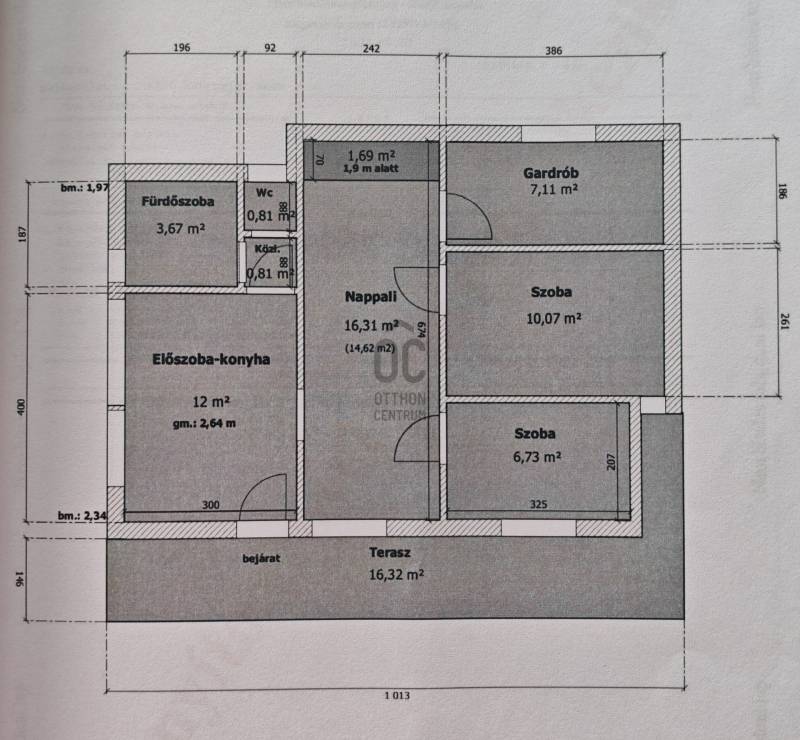
Eladásra kínálunk egy 4 szobás, konyhával, fürdőszobával rendelkező könnyűszerkezetes nyaralót a Somlyósziget Ráckevéhez közel eső részén. Az ingatlan télen-nyáron egyaránt élvezhető, mivel szigetelt és hűtő-fűtő klímával ellátott. A Dunapart könnyen megközelíthető, kevesebb mit 200 méter távolságra van telektől. A környéken kiemelkedően összetartó és jó a közösség, sokan egész évben kint laknak.Ház:- nettó 58 nm, bruttó 74 nm- nappali + 2 háló, valamint egy félszoba- konyha-étkező- fürdőszoba káddal és egy WC- 16 nm-es teraszMűszaki adatok egyéb jellemzők:- bekötve: villany, víz ás csatorna- fűtés: hűtő-fűtő klíma- melegvíz: villanybojler- nyílászárók: fa és fém- tető: lemezTelek:- 367 nm - két kerti tárolóval- térkövezett padlóval rendelkező szaletliTökéletes választás azoknak akik egy igazán nyugis helyen szeretnének pihenni. Akiknek szenvedélyük a horgászás és fontos, hogy akár nagyobb társasággal is elférjenek. Akik szeretnek családi- baráti összejöveteleket tartani. Akik szívesen töltik a víz közelében az idejüket.Amennyiben szeretne többet megtudni az ingatlanról HÍVJON minél előbb!!!!Adatbázisunkban további több ezer ingatlanból választhat, hívjon bizalommal, hogy megtaláljuk a legmegfelelőbbet! Hitelre van szüksége? Teljes körű és díjmentes hitel-ügyintézéssel, biztosításkötéssel áll rendelkezésére szakértő kollégánk. Kérjeszemélyre szabott ajánlatunkat!Ez az ingatlan a \"Hűség csomag\" megbízási portfólióhoz tartozik. Részletek az Otthon Centrum weboldalán.

További adatok

Telekterület: 367 m2
Kert mérete: 367 m2
Erkély mérete: 16 m2
Felszereltség: -
Parkolás: -
Kilátás: -
Egyéb extrák:  
-

Hirdető adatai

Hirdető neve: Otthon Centrum
Kapcsolattartó: Fejes Tímea
Hirdető telefonszáma: +36 70 388 5336
Honlap: -