Ház
Origó
HázOrigoval pont a központban

Pest megye, Szentendre


 

Ingatlan adatai

Irányár: 395 000 000 Ft
Típus: ház
Kategória: eladó
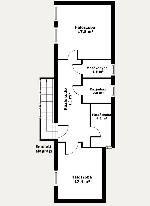
Alapterület: 200 m2
Fűtés: gáz (cirko)
Állapota: -
Szobák száma: 5
Építés éve: 2013
Szintek száma: -

Részletes leírás

Egy hely, ahol reggelente a fény végigsétál a nappali falán, ahol minden szegletből árad valami finom, derűs egyediség. Üdv itthon!RÖVIDENAz Óváros szélén, egy eldugott, bájos kis utcácskában – a Kapás közben – kínálunk eladásra egy különleges hangulatú, kétszintes, 200 m²-es családi házat, 5 szobával, 3 fürdőszobával, saját, gondozott kerttel és lenyűgöző panorámával a Dunára. A 2013-ban épült otthon kiváló műszaki állapotban van, és minden részletében érezhető: olyan családnak készült, akik nemcsak lakni, hanem élni szeretnének benne.Szentendre – a Dunakanyar bohém szépsége – Kőbe faragott történelem, galériák és macskaköves utcák világa, amely egyszerre klasszikus és eleven, csendes és vibráló. Itt a levegő is egy kicsit más – tele van ihlettel, és mintha minden sarkon egy régi történet suttogná tovább magát a házfalakon át.A Kapás köz egy csendes, szinte rejtett kis mellékutca az Óváros peremén, ahol a város hangulata még emberléptékű. Innen néhány perc séta a Duna-part, ahol a reggeli kávé után akár futni, akár csak megállni egy pillanatra is jólesik. A Pótkulcs Kávézó barátságos, kissé bohém belső terében festmények, könyvek és illatok keverednek, míg a Szamos Marcipán Cukrászda teraszán egy krémes mellett könnyen elnyúlik a délelőtt.Aki aktívabb kikapcsolódásra vágyik, a közeli Wiking Yacht Clubban evezhet, csónakázhat, vagy egyszerűen csak élvezheti a Duna közelségét és a vízparti levegőt. A Japánkert várja a természet és botanika szerelmeseit - a gondosan tervezett növényekkel és kanyargós ösvényeivel minden évszakban külön kis világ, és egy délutáni séta vagy egy nyugodt olvasás tökéletes helyszíne.A közelben található Czóbel Park hangulatos sétányai a helyiek kedvenc pihenőhelyei közé tartoznak, míg a Szoborpark különleges, kültéri művészeti élményt nyújt – a szentendrei művészeti hagyományokat szó szerint a természetbe ágyazva. Ezek a helyek nemcsak kellemes programlehetőségek, hanem olyan terek, ahol a város lüktetése lelassul, és teret enged az elmélyülésnek.A hétvégi reggelihez a Pékműhely ropogós kovászos kenyereit vagy fahéjas csigáit érdemes hazavinni – itt mindig frissen sül, illatos, és olyan, mint egy falatnyi gondoskodás. Aki szereti az eldugottabb helyeket, a Menta Terasz (a Bükkös-patak mellett) egy kis zöld zug, ahol egy limonádé mellett nézni a víz csobogását felér egy meditációval.Miközben Szentendre ennyi inspirációt kínál, a mindennapok intéznivalói is könnyen elérhetők. A közelben minden megtalálható, ami a családi élethez szükséges – iskola, óvoda, gyógyszertár, kisboltok –, Budapest belvárosa pedig a HÉV-nek és a 11-es főútnak köszönhetően 30–40 percen belül elérhető, akár autóval, akár tömegközlekedéssel. Így a napi ügyintézés, a munkába járás vagy akár egy esti színház sem jelent kihívást – a visszatérés pedig mindig békét jelent majd.AZ ÉPÜLET – Kortárs harmónia az óváros szélénA ház építészeti megoldásai egyszerre modernek és emberléptékűek. Tégla falak, nagy ablakok, izgalmas szinteltolások, praktikus alaprajz – mindez egy olyan térélményt teremt, amely követi a benne lakók ritmusát. A délkeleti tájolásnak köszönhetően a reggeli fény végigkíséri a napod, miközben a kertre és a folyóra nyíló kilátás folyamatos kapcsolatban tart a természettel.A 450 m²-es, gondosan kialakított kert nemcsak szép, hanem élhető is: intim, mégis nyitott, játékra és pihenésre egyaránt alkalmas. A kert közepén elhelyezett medence egyszerre ad vizuális fókuszt és valódi nyári örömöket. És igen: itt még az esti fények is különös derűt vetnek a ház falaira.A ház alatt pince és tároló is található – műhelynek, festőteremnek, zeneszobának vagy egyszerűen csak annak, amire épp szükség van.A TEREK A földszinten egy tágas, világos közösségi tér fogad: nappali, étkező és konyha egyetlen nagy, átjárható világban, amit a kert felé nyíló terasz tesz teljessé.A lépcső nemcsak szinteket, hanem hangulatokat is választ el: az emeleten meghúzódó hálószobák nyugodt, intim zónát alkotnak. Három fürdőszoba segíti a gördülékeny reggeleket, és elegendő hely van ahhoz, hogy mindenki megtalálja a saját ritmusát.A 260 cm-es belmagasság, a letisztult vonalak, a gondosan válogatott burkolatok és a meleg tónusú fények mind hozzájárulnak ahhoz, hogy ez az otthon ne csak funkcionális, hanem érzelmileg is valódi otthon legyen.MIÉRT ÉPP EZ A HÁZ?Mert van benne lélek.Mert képes egyszerre művészi és praktikus lenni.Mert itt minden reggel máshogy kék a Duna.És mert van valami benne, amit nem lehet számokkal, négyzetméterekkel vagy felsorolásokkal leírni – csak az tudja, aki belép.Ez a ház ideális választás mindazoknak, akik kicsit másképp gondolkodnak. Nagycsaládosoknak, kétgenerációs együttéléshez, vagy azoknak, akik egy élettel teli, inspiráló környezetben képzelik el jövőjüket.MEGHÍVÁSHa érzi, hogy az otthon nemcsak egy cím, hanem egy érzés is…Ha szereti, ha egy ház mesél…Ha kíváncsi arra, milyen a Duna kékje Szentendrén, egy csendes kertből nézve…Jöjjön el, és ismerje meg ezt a különleges otthont személyesen is.

További adatok

Telekterület: 450 m2
Kert mérete: 450 m2
Erkély mérete: 100 m2
Felszereltség: -
Parkolás: -
Kilátás: -
Egyéb extrák:  
-

Hirdető adatai

Hirdető neve: Otthon Centrum
Kapcsolattartó: Török Dávid
Hirdető telefonszáma: +36 70 461 9106
Honlap: -