Ház
Origó
HázOrigoval pont a központban

Budapest, XIV.kerület


 

Ingatlan adatai

Irányár: 105 000 000 Ft
Típus: lakás (tégla)
Kategória: eladó
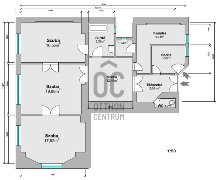
Alapterület: 95 m2
Fűtés: gáz (cirko)
Állapota: -
Szobák száma: 5
Építés éve: 1940
Szintek száma: -

Részletes leírás

Eladó XIV.kerület Istvánmező ,Ilka utcában egy 95 nm.-s ,4 egész + 1 félszobás + hallos,összkomfortos,tökéletes elosztású,nagypolgári lakás cirkó (kondenzációs)fűtéssel.Az ingatlan egy ápolt,belső udvarral rendelkező liftes társasház első emeletén található.A nyílászárók eredeti állapotban lettek meghagyva,fából készültek!Az ingatlan alkalmas irodának is elosztása miatt.Közös költsége:31.000.- / hó.Villany ,gáz egyedi mérőórák alapján.Tehermentes,rugalmasan mutatható.Ne hagyja ki ezt a lehetőséget – hívjon bizalommal a megtekintésért és további információért!- Országos kínálatunkból megtaláljuk Önnek a legmegfelelőbbet.- Amennyiben jelenlegi ingatlana értékesítésében is segítségére lehetek, kérem, forduljon hozzám bizalommal!- Az ingatlanok megvásárlását ingyenes hiteltanácsadással és ügyintézéssel, valamint, igény esetén, korrekt ügyvédi háttérrel segítjük!- Ajánlatunk nem csak a nálunk vásárolt ingatlanok esetében érvényes. Hívjon, és mi megoldjuk minden ingatlanügyét.Lakásbiztosításban is otthon vagyunk!Ingatlan és biztosítás egy helyen! Szakértő kollégáink segítenek megtalálni a legmegfelelőbb ajánlatot.

További adatok

Telekterület: -
Kert mérete: -
Erkély mérete: -
Felszereltség: -
Parkolás: -
Kilátás: utcai
Egyéb extrák:  
-

Hirdető adatai

Hirdető neve: Otthon Centrum
Kapcsolattartó: Koleszár Kitti
Hirdető telefonszáma: +36 70 716 9271
Honlap: -