Ház
Origó
HázOrigoval pont a központban

Nógrád megye, Hollókő


 

Ingatlan adatai

Irányár: 150 000 000 Ft
Típus: ház
Kategória: eladó
Alapterület: 190 m2
Fűtés: -
Állapota: -
Szobák száma: 7
Építés éve: 2000
Szintek száma: -

Részletes leírás

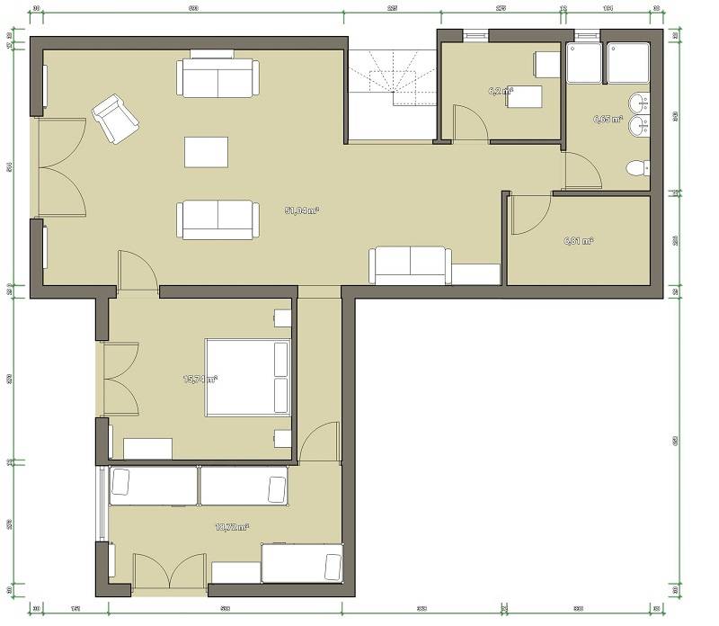
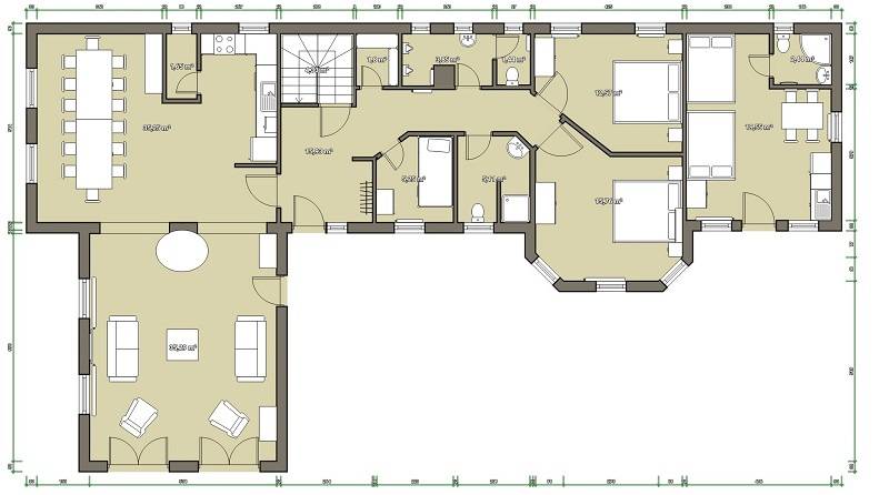
Egy ingatlan, amely egyszerre élmény, befektetés és lehetőség.Cégeknek Kavosz 3% hitellel, 10% önerővel megvásárolható a 2025 október 10 utáni időszakban. A vételáron felül az ingóság 34,9mF az külön fiezetnedő, az ingatlan 150 Millió Forintba kerül. Ha Ön panziókat üzemeltető befektető, rendezvényszervező cég tulajdonosa vagy vadásztársaság vezetője, érdekelheti : ez a 264 m²-es, teljesen felszerelt, kétszintes vendégház Hollókő világhírű, UNESCO világörökségi környezetében, amely stabil ügyfélkört és hozamot kínál bármely időtávon. Miért kihagyhatatlan?Lokáció – mindössze 500 méterre a falu központjától, mégis nyugodt, privát környezetben.Páratlan panoráma – lélegzetelállító kilátás a Mátra vonulataira és a Cserhát lankáira.Stabil bevételi forrás – Hollókő Magyarország egyik leglátogatottabb turisztikai célpontja, egész éves vendégforgalommal.Sokoldalú hasznosítás – panzió, céges csapatépítők, esküvők, vadásztúrák bázisa – a lehetőségek száma szinte végtelen.A birtok adataiTelek: 3445 m², teljes közművel, parkolóhelyekkel, tágas kerttel.Épület: 2 szint, 264 m² hasznos alapterület.Földszint: nagy konyha-étkező, kandallós nappali, 4 hálószoba (ebből 1 privát lakosztály saját fürdővel), 2 akadálymentes fürdőszoba, gardrób.Alsó szint: nappali, 2 hálószoba, fürdő, tároló, kazánház.Kényelem: gázkazános fűtés, 5 klíma, fedett terasz, kert, bográcsozóhely.Képzelje el…Vendégei reggel a teraszon kávéznak, miközben a nap első sugarai megvilágítják a Mátrát. Nappal túráznak, vadásznak, vagy részt vesznek Hollókő kulturális programjain. Este borvacsora a kertben, tábortűz és történetek – Ön pedig tudja, hogy mindez egy stabil, hosszú távú, magas hozamú befektetés része.A közelbenHollókői vár: 1,8 kmFalumúzeum: 1 kmSzécsényi Forgách-kastély: 16 kmEz nem csak egy ház – ez egy életérzés, üzleti lehetőség és prémium ingatlan egyben.Hívjon most, és tekintse meg elsőként az ingatlant.

További adatok

Telekterület: 3 445 m2
Kert mérete: 3 445 m2
Erkély mérete: 38 m2
Felszereltség: -
Parkolás: -
Kilátás: -
Egyéb extrák:  
-

Hirdető adatai

Hirdető neve: Otthon Centrum
Kapcsolattartó: Rozgonyi György
Hirdető telefonszáma: +36 70 465 7006
Honlap: -