Ház
Origó
HázOrigoval pont a központban

Budapest, II.kerület


Rózsadomb 

Ingatlan adatai

Irányár: 389 000 000 Ft
Típus: lakás (tégla)
Kategória: eladó
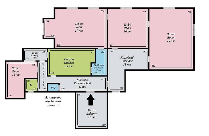
Alapterület: 195 m2
Fűtés: gáz (cirko)
Állapota: felújítást igényel
Szobák száma: 4
Építés éve: 1910
Szintek száma: -

Részletes leírás

Eladó egy kivételes adottságokkal rendelkező, 195 m²-es, kertkapcsolatos lakás csendes mellékutcában, zöldövezeti környezetben. A lakás külön bejárattal rendelkezik, így teljes intimitást biztosít lakóinak. A 4 méteres belmagasság és a hatalmas ablakok tágas, világos tereket teremtenek, amelyek egyedülálló hangulatot nyújtanak.Az ingatlan 4 szobával, saját pincével és garázzsal rendelkezik, ami kényelmes parkolást és bőséges tárolási lehetőséget biztosít. A társasház kevés lakásos, így nyugodt, családias légkör várja az új tulajdonost.Felújítandó állapotban van, ami kiváló lehetőséget kínál arra, hogy saját ízlésére alakítsa ki az otthonát. A kertkapcsolat pedig ideális választássá teszi mindazok számára, akik szeretik a természet közelségét és a privát szabadtéri teret.Ha egy igazán különleges, világos és tágas otthont keres Budapest egyik legnyugodtabb, zöldövezeti részén, ne hagyja ki ezt a lehetőséget!Fontos információ a hirdetés képei kapcsánA hirdetésben szereplő látványtervek azt mutatják be, hogyan nézhet ki a lakás egy felújítást követően, és milyen potenciál rejlik benne. A jelenlegi tulajdonos azonban a felújítást nem fogja elvégezni a kialakítás teljes mértékben az új tulajdonosra vár. Ez valódi lehetőséget jelent arra, hogy a lakás pontosan olyan legyen, amilyet megálmodott.

További adatok

Telekterület: -
Kert mérete: -
Erkély mérete: -
Felszereltség: -
Parkolás: -
Kilátás: utcai
Egyéb extrák:  
-

Hirdető adatai

Hirdető neve: MPD Hungary Kft.
Kapcsolattartó: Mille-Case Kft.
Hirdető telefonszáma: +3613361706
Honlap: -