Ház
Origó
HázOrigoval pont a központban

Tolna megye, Németkér


 

Ingatlan adatai

Irányár: 26 000 000 Ft
Típus: ház
Kategória: eladó
Alapterület: 68 m2
Fűtés: egyéb
Állapota: -
Szobák száma: 2
Építés éve: 1960
Szintek száma: -

Részletes leírás

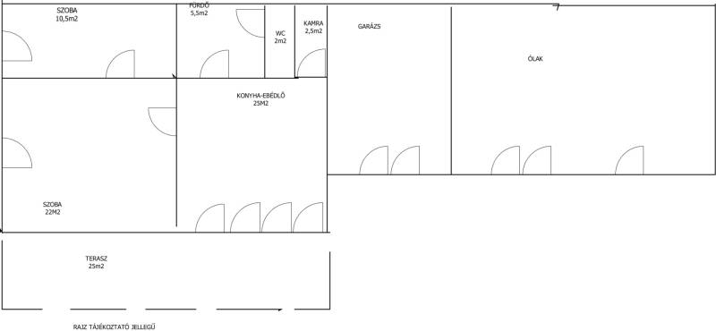
ERDŐ MELLETT LAKJUNK SOKÁIG!! :)NÉMETKÉREN ELADÓ CSALÁDI HÁZ!Falu Szélén igazi nyugalomba csodálatos zöld környezetben található 2 szobás 68 m2-es igényes vert falú családi ház.A ház tavaj kapott új tetőt  20 cm-es szigeteléssel terítették le. Műanyag ablakok vannak  a szobákbanplusz szép zsalugáterrel vannak el látva szobák. A konyha szigetelt üvegfalat kapott melyet asztalos készített fából. Mindenhol szúnyogháló van.Szép nagy fedett terasz van amely a nyári melegben árnyékot biztosít. Nyáron lakták a házat ezért csak kályhával vagy villannyal lehet megoldani jelenleg a fűtést. Az utcába van a gáz, ha szeretné az új tulajdonos akkor egyszerű a rákötés. Most állami segítséget is igénybe lehet venni.Ipari áram is be van kötve. 3 * 16 Amper.Villanyvezeték ki lett cserélve.12 m3-es szennygödör lett kiépítve.Ház folytatásában 25m-es melléképület van. Ebbe egy garázs, szép tiszta kinti  mellékhelyiség és fakkozott disznóólak vannak. Hátra fele még található legalább 20 m2-es tárolók. Kert jelenleg rendezett füves terület.1440 m2-es telken fekszik. Akár állattartásra is alkalmas a nagy terület.Ha felkeltette az érdeklődést keressen bizalommal.Kollégánk segít a banki kavalkád eligazodásában, térítés mentesen.

További adatok

Telekterület: 1 440 m2
Kert mérete: 1 440 m2
Erkély mérete: -
Felszereltség: -
Parkolás: -
Kilátás: -
Egyéb extrák:  
-

Hirdető adatai

Hirdető neve: Otthon Centrum
Kapcsolattartó: Molnár Ida
Hirdető telefonszáma: +36 70 469 3596
Honlap: -