Ház
Origó
HázOrigoval pont a központban

Pest megye, Dömsöd


 

Ingatlan adatai

Irányár: 88 000 000 Ft
Típus: ház
Kategória: eladó
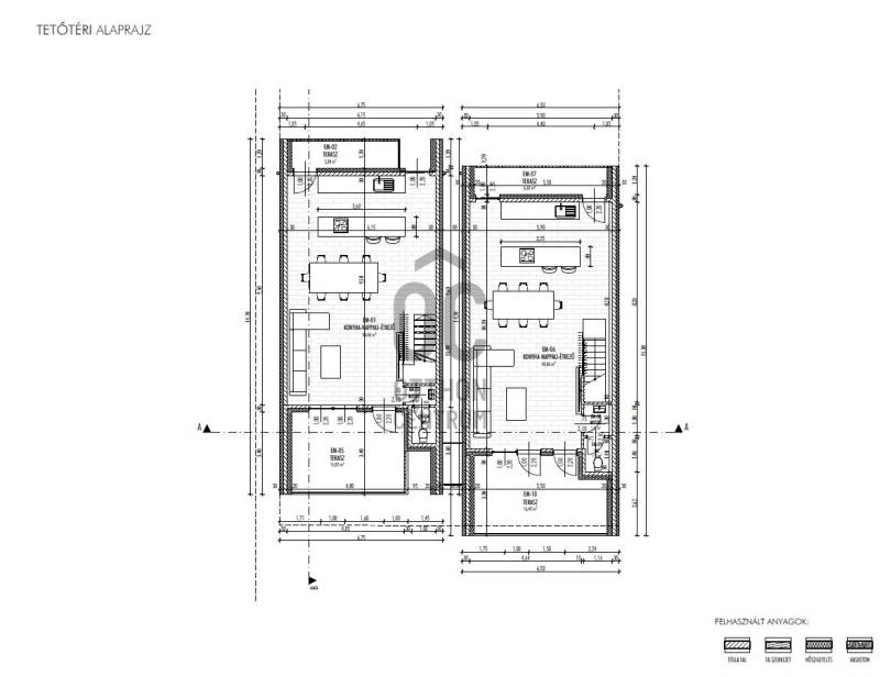
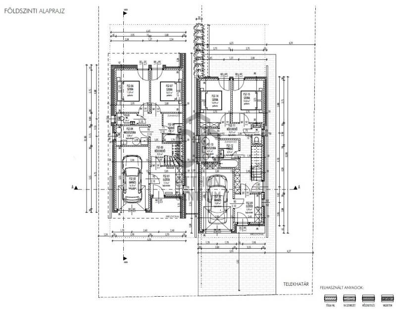
Alapterület: 143 m2
Fűtés: -
Állapota: új
Szobák száma: 3
Építés éve: 2025
Szintek száma: -

Részletes leírás

Néhány száz méterre a Duna-parti sétánytól, kis dunai örök panorámás telkeken épülő otthonokat kínálunk eladásra.Még van lehetőség mind a két ikerfél megvásárlására.Az ingatlanok hatalmas étkező-konyhás nappalival és két hálószobával kerülnek átadásra, de igény esetén a nappaliból még egy hálószoba kényelmesen kialakítható.Mind a teraszokról, mind a nappaliból zavartalan kilátás nyílik a Kis Dunára.A garázs természetesen az épületen belül kapott helyet.A legújabb energetikai követelményeknek megfelelően, hőcserélő szivattyú alkalmazásával, padlófűtéssel és mennyezeti hűtéssel épül.A ikerház kulcsrakészen kerül átadásra.Felár ellenében rendelhető gépesített konyhabútor, fürdőszoba bútor, elektromos garázskapu, stb..A kivitelező nyitott arra, hogy a teljes kertrendezési munkálatokat is elvégezze megegyezés szerint.Amennyiben igényli a vevő , abban az esetben szintén egyedi megállapodással a teljes lakberendezést is vállalja az eladó.

További adatok

Telekterület: 285 m2
Kert mérete: 285 m2
Erkély mérete: -
Felszereltség: -
Parkolás: -
Kilátás: -
Egyéb extrák:  
-

Hirdető adatai

Hirdető neve: Otthon Centrum
Kapcsolattartó: Krakkó Ildikó
Hirdető telefonszáma: +36 70 716 9041
Honlap: -