Ház
Origó
HázOrigoval pont a központban

Hajdú-Bihar megye, Debrecen


 

Ingatlan adatai

Irányár: 149 900 000 Ft
Típus: ház
Kategória: eladó
Alapterület: 113 m2
Fűtés: gáz (cirko)
Állapota: -
Szobák száma: 4
Építés éve: 2020
Szintek száma: -

Részletes leírás

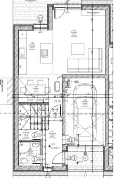
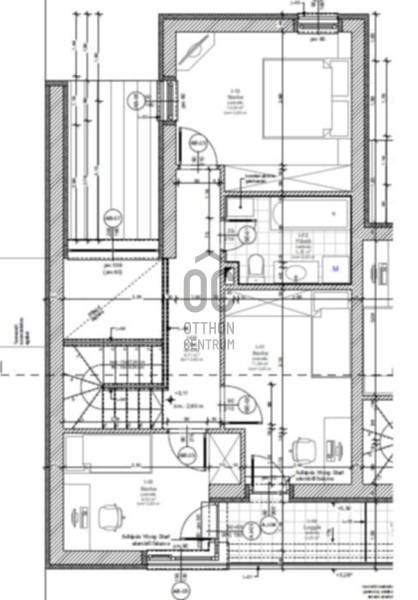
FIATALOS, MODERN OTTHON DEBRECEN EGYIK LEGKEDVELTEBB RÉSZÉN PARKOSÍTOTT KERTTEL ÉS TÁGAS TERASSZAL!Ha olyan otthont keres, ahol a városi kényelem és a kertvárosi nyugalom tökéletes harmóniában találkozik, akkor megtalálta!A Hatvan utcai kert csendes, zöldövezeti zsákutcájában eladó egy 2020-ban épült, 113 m²-es, modern sorházi lakás (98 m² lakótér + 15 m² garázs), amelyhez tartozik egy 35 m² fedett terasz és egy 200 m²-es, szervizútról is megközelíthető parkosított kert. Ez a ház igazi ritkaság, ahol a privát élettér és a szabadság élménye minden nap átélhető.Az ingatlan főbb jellemzői:Modern, téglaépítésű, hőszigetelt házFöldszint: nappali + étkező + konyha egy légtérben, közvetlen terasz- és kertkapcsolattal, garázs, előszoba, mosókonyha, zuhanyzó + WCEmelet: 3 külön nyíló hálószoba, fürdőszoba káddal és zuhannyal, WC, gardróbFűtés: gázcirkó (földszinten padlófűtés, emeleten radiátoros rendszer)Modern nyílászárók, nagy ablakokon elektromos redőny és szúnyoghálóLaminált parketta az emeleten, hidegburkolat padlófűtéssel a földszintenKlíma 5,2 kW hűtő-fűtő teljesítménnyel, WiFi vezérlésselExtrák: kamera és riasztó előkészítés, automata öntözőrendszer WiFi vezérléssel, fúrott kút, parkosított kert, kerti tárolóParkolás:Garázs + a ház előtti területen akár 2 autó kényelmes parkolása is megoldott.Lokáció:Csendes, nyugodt lakókörnyezetben található, ugyanakkor a belváros néhány perc alatt elérhető. A közelben Auchan, Lidl, Stop Shop, óvoda, iskola és minden, ami a mindennapi élethez szükséges.Ez az otthon fiatal pároknak, családoknak és befektetőknek is ideális választás – mert egyszerre nyújt modern életteret, biztonságot és a természet közelségét. Ha szeretné személyesen megtapasztalni ennek az ingatlannak a különleges hangulatát, hívjon bizalommal – akár hétvégén is örömmel állok rendelkezésére!

További adatok

Telekterület: 300 m2
Kert mérete: 300 m2
Erkély mérete: 38 m2
Felszereltség: -
Parkolás: -
Kilátás: -
Egyéb extrák:  
-

Hirdető adatai

Hirdető neve: Otthon Centrum
Kapcsolattartó: Szaszala Zsolt
Hirdető telefonszáma: +36 70 469 3681
Honlap: -