Ház
Origó
HázOrigoval pont a központban

Somogy megye, Balatonlelle


 

Ingatlan adatai

Irányár: 96 600 000 Ft
Típus: lakás (újépítésű)
Kategória: eladó
Alapterület: 81 m2
Fűtés: -
Állapota: új
Szobák száma: 3
Építés éve: 2025
Szintek száma: -

Részletes leírás

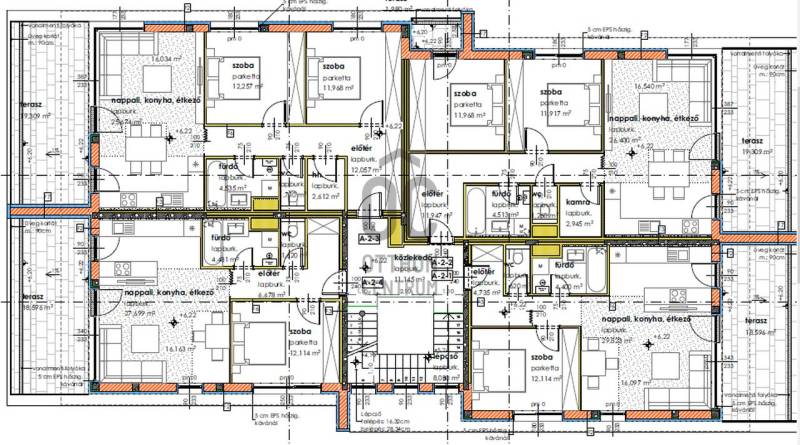
Eladó lakások Balatonlelle frekventált utcájában 60 m-re a szabadstrandtól és 600 m-re a tengerparti feelinget nyújtó nagy strandtól.A 15 lakásos társasház magas műszaki és esztétikai minőségben készül, még 10 lakás keresi tulajdonosát.Hatalmas üvegfelületek, igényes burkolatok! Alapterületük nettó 50 – 100 m2 közöttiek, 2-3 szobás apartmanok.Legfelső szinten Penthouse lakások kerültek kialakításra.A lakásokban Fan-coil berendezéssel lehet szabályozni a hőmérsékletet a megszokott többcsillagos szállodai minőségben.A kivitelező már bizonyított, kifogástalan munkát végez, referenciák megtekinthetők.Balatonlelle városa számos kikapcsolódási lehetőséget kínál. Nyáron nehéz választani, hogy a hangulatos Szent István tér és Móló sétány mellett, a cirkusz, vidámpark, szabadtéri színpad, mozi, vagy éppen a rendezvény park programját látogassuk.Tisztelt érdeklődő, garantálom nem fog csalódni.Amennyiben felkeltettem érdeklődését, kérem hívjon bizalommal !Átadás: 2026 harmadik negyedévtől folyamatosan.- A-2-3- LIFT !- magas műszaki minőség- Penthouse apartmanok- Fan-coil klíma- erkély- gk parkoló vásárolható

További adatok

Telekterület: -
Kert mérete: -
Erkély mérete: 19 m2
Felszereltség: -
Parkolás: -
Kilátás: udvari
Egyéb extrák:  
-

Hirdető adatai

Hirdető neve: Otthon Centrum
Kapcsolattartó: Pomozi Gábor
Hirdető telefonszáma: +36 70 461 9616
Honlap: -