Ház
Origó
HázOrigoval pont a központban

Budapest, V.kerület


Falk Miksa utca 

Ingatlan adatai

Irányár: 1 200 000 Ft/hó
Típus: lakás (tégla)
Kategória: kiadó
Alapterület: 112 m2
Fűtés: egyéb
Állapota: felújított
Szobák száma: 4
Építés éve: -
Szintek száma: 3

Részletes leírás

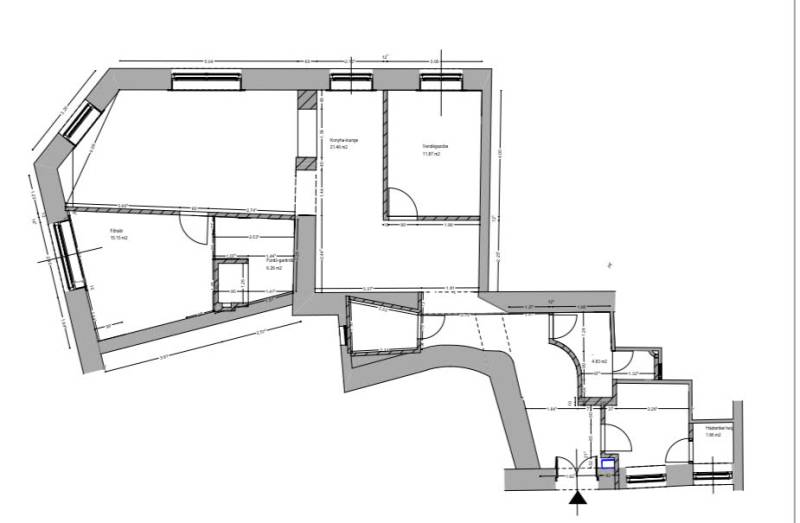
Kiadásra kínálunk a belváros kedvelt régiójában, V. Falk Miksa utcában , egy teljesen felújított ,112 nm-es LUXUS LAKÁST , liftes, rendezett ház 3. emeletén.Az ingatlan amerikai konyhás nappalival étkezővel ,2 külön nyíló hálószobával , dolgozóval, 2 fürdőszobával és egy vendég wc-vel rendelkezik,utcai nézetű, az egyik szobából még a Dunát is látni.A lakás hűtő -fűtő klímával felszerelt, a meleget télen padlófűtés biztosítja.Központi elhelyezkedésének köszönhetően tömegközlekedéssel is jól megközelíthető.Kisállat nem hozható, dohányzás nem megengedett.Tulajdonosa igényes, hosszútávú ( minimum 1 évre ) bérlőt szeretne, 2 havi kaucióval azonnal költözhető.Várjuk hívását!

További adatok

Telekterület: -
Kert mérete: -
Erkély mérete: -
Felszereltség: -
Parkolás: -
Kilátás: utcai
Egyéb extrák:  
-

Hirdető adatai

Hirdető neve: ArtsHome Ingatlaniroda
Kapcsolattartó: Pápai Gyöngyi
Hirdető telefonszáma: +36-30-074-4685
Honlap: -