Ház
Origó
HázOrigoval pont a központban

Pest megye, Vácrátót


 

Ingatlan adatai

Irányár: 96 500 000 Ft
Típus: ház
Kategória: eladó
Alapterület: 76 m2
Fűtés: -
Állapota: új
Szobák száma: 4
Építés éve: 2025
Szintek száma: -

Részletes leírás

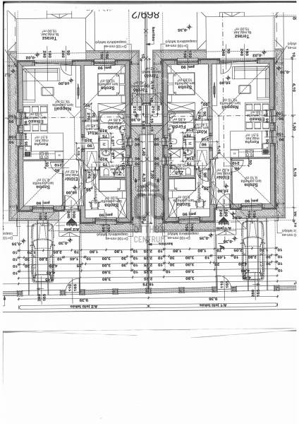
A Szent-István lakóparkban tárolóval kapcsolódó új építésű ikerház költözhető 2026 tavaszán.A ház elrendezése- amerikai konyhás nappali 28 nm-terasz 15nm- hálószobák 9nm- 9.10 nm- 10.65- 2 fürdöszba káddal, illetve zuhanyzóval- közlekedők- külső tároló -gépkocsi beálló- térkővel burkolt- telek mérete 380 nmReferencákkal rendelkező igényes kivitelezőtől.Műszaki tartalom:- hőszivattyús padlófűtés- 30 cm-es téglafalazat-10 cm-es grafitos kivitelezés- beton födém-pakolható padlástér- klíma kiállások minden helyiségben-H tarifás villanyóra- napelem előkészítés- redőny előkészítés- riasztó előkészítés- 3 rétegű meleg peremes nyílászárókA lakópark csendes, nyugod életteret nyújt. A gyerekek elhelyezését Vácrátóton bölcsöde, óvoda, általános iskola biztosítja.A település szomszédságában található Őrbottyán és Veresegyház szolgáltatásai minden igényt kielégítenek.Budapest busszal könnyen elérhető.Egy évben többször is felkereshetjük a Nemzeti Botanikus Kertet.

További adatok

Telekterület: 380 m2
Kert mérete: 380 m2
Erkély mérete: -
Felszereltség: -
Parkolás: -
Kilátás: -
Egyéb extrák:  
-

Hirdető adatai

Hirdető neve: Otthon Centrum
Kapcsolattartó: Bohus László
Hirdető telefonszáma: +36 70 412 4106
Honlap: -